EasyManua.ls Logo

Calorex Pro-Pac PPT45EHC - Page 23

Calorex Pro-Pac PPT45EHC
104 pages
Print Icon
To Next Page IconTo Next Page
To Next Page IconTo Next Page
To Previous Page IconTo Previous Page
To Previous Page IconTo Previous Page
Loading...
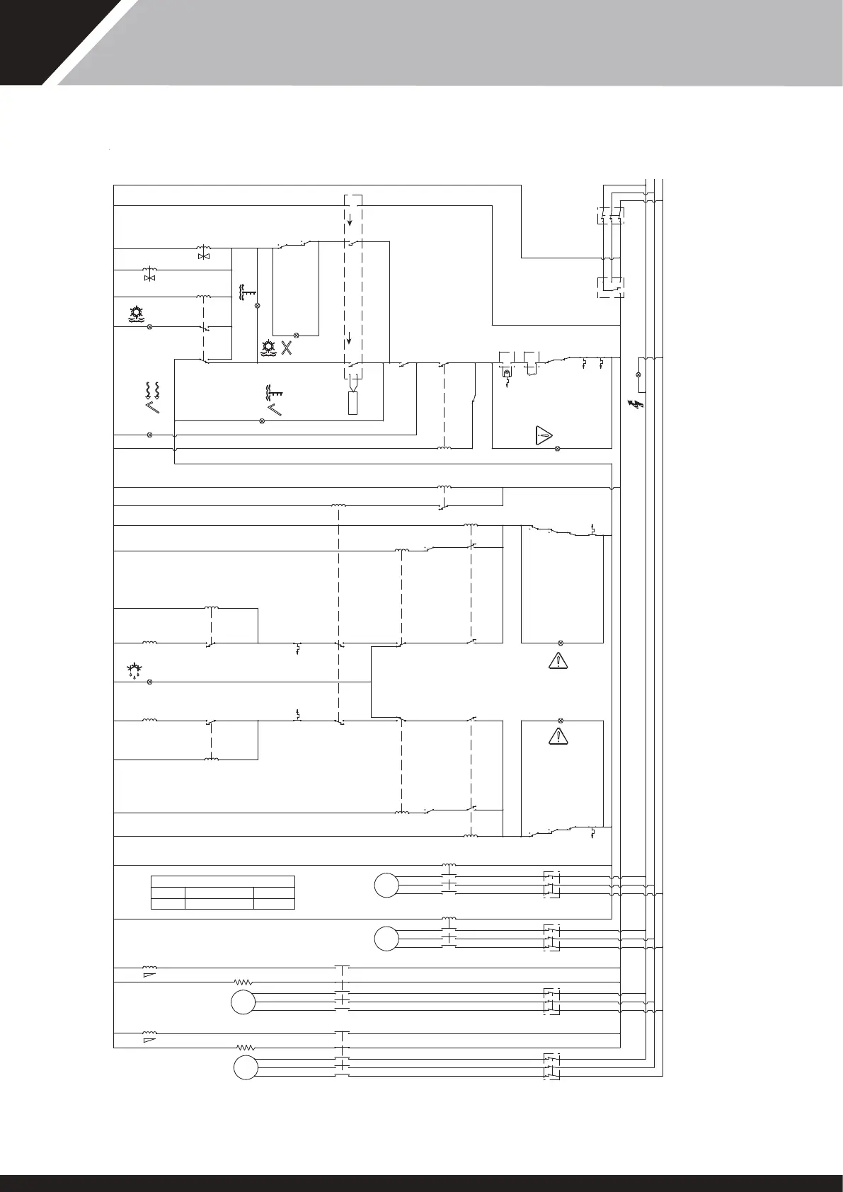
D555750
MCB CONTACTS / MCB ALARM CONTACTS / MCB AUX CONTACTS SHOWN WITH CIRCUIT
BREAKER MANUALLY SWITCHED TO THE ON CONDITION.
WATER FLOW SWITCH CONTACTS SHOWN WITH WATER FLOW AT MAXIMUM RATE
CONTROL
CIRCUIT BREAKER
PHASE ROTATION
RELAY
WATER FLOW SWITCH
STANDBY
SWITCH
FAULT
LIGHT
HEAT LIGHT
FLOW OK LAMP
TEMP OK
LIGHT
CHILL LIGHT
COMPRESSOR
1 MOTOR
PROTECTOR
COMPRESSOR 1
MCB AUX BLOCK
TRIP = BREAK CONTACT
LP SWITCH
(BREAKS TO H ON
PRESSURE FALLING)
HP SWITCH
(BREAKS TO L ON
PRESSURE RISING)
LP SWITCH (BREAKS
ON PRESSURE
FALLING)
HP SWITCH
(BREAKS ON
PRESSURE RISING)
COMPRESSOR 2
MOTOR
PROTECTOR
COMPRESSOR 2 MCB
AUX BLOCK
TRIP = BREAK CONTACT
FRIDGE CIRCUIT 2
CHILL LIMIT
PRESSURE SWITCHES
(BREAK TO H ON TEMP
FALLING)
FRIDGE CIRCUIT 1
FAULT
LIGHT
1
FAULT
LIGHT
2
MAINS LIGHT
RELAY (R3)
FAN 2 MCB AUX BLOCK ALARM
TRIP = BREAK CONTACT
INTERLOCK
TERMINALS
RELAY
(R1)
RELAY (R5)
MAKES 7 TO 8 ON TEMP RISING
MAKES 6 TO 4 ON TEMP FALLING
SENSOR
DIGITAL STAT
(2 STAGE)
CHILL
LIMIT
LIGHT
STARTER OR
EXTERNAL FLOW
SWITCH
SOFT START
THERMAL
O/LOAD & FAULT
LIGHT IF FITTED
FAN 1 THERMAL
CUT OUT
FAN 2 THERMAL
CUT OUT
RELAY (R4)
RELAY (R2)
12 HOURS
DELAY TIMER (1)
RELAY (R7)
RELAY (R6)
COMP
1
COMP
2
COMP 1 HEATER
DELAY
TIMER 3
(7 MINS)
DELAY
TIMER 2
(6 MINS)
FRIDGE CIRCUIT 2
VALVE,COIL
(LIQUID LINE
SHUT OFF)
FRIDGE CIRCUIT 1
VALVE,COIL
(LIQUID LINE SHUT
OFF)
COMP 1 CIRCUIT BREAKER
TRIP / OFF = BREAK CONTACT
FRIDGE
CIRCUIT 1
DEFROST STAT
(BREAKS TO 'H' ON
TEMP FALLING)
DEFROST
LIGHT
COMPRESSOR 2
MCB AUX BLOCK
TRIP / OFF = BREAK
CONTACT
COMPRESSOR 1
CONTACTOR
COMP 2 CONTACTOR
FAN
1
FAN
2
FAN 1 CIRCUIT BREAKER
TRIP / OFF = BREAK CONTACT
FAN 1
CONTACTOR
FAN 2 CIRCUIT BREAKER
TRIP / OFF = BREAK CONTACT
FRIDGE CIRCUIT 1
REVERSING VALVE
NOTE
L1
L2
L3
14 (N/O)
96
(N/C) 95
96
(N/C) 95
TK
TK
(N/C) TK
(N/C) TK
(COM) 1
RUN (N/O) 2
3 (N/C)
STANDBY
6 (COM)
1 (L)(N) 2
(N/O) 4
(N/C) 5
5
TRIP / OFF = BREAK CONTACT
1
3
2 (N/C)
4 (N/C)
6 (N/C)
L1
L2
L3
11 (COM)
12 (N/C)
AB
4 (N/O)
1 (N/C)
6 (N/O)
3 (N/C)
10
11
(COM) 7
(COM) 9
(COM) C
(N/O) H L (N/C)
AB
(N/C) 1
(N/O) 4 7 (COM)
B
B
1 (N/C)
4 (N/O)
(COM) 7
3 (N/C)
6 (N/O)
(COM) 97 (COM)
(N/O) 4
(N/C) 1
(COM) C
(N/O) H L (N/C)
A
A
1 (N/C)
(COM) 7 4 (N/O)
34
(N/C) 33
15 (COM)
18 (N/O)
16 (N/C)
A2A1
A1A2
A1 A2 (COM) 9
34
33 (N/C)
3 (N/C)
6 (N/O)
15 (COM)
16 (N/C)
18 (N/O)
A1A2
44
(N/C) 43
(COM) C
(N/O) L H (N/C)
(COM) C
(N/O) H L (N/C)
AB 15 (COM)
18 (N/O)
16 (N/C)
A1A2
1
3
5
(N/C) 2
(N/C) 4
(N/C) 6
1
3
5
(N/O) 2
(N/O) 4
(N/O) 6
A2A1
1
3
5
(N/C) 2
(N/C) 4
(N/C) 6
1
3
5
(N/O) 2
(N/O) 4
(N/O) 6
A2A1
1
3
5
(N/C) 2
(N/C) 4
(N/C) 6
1
3
5
(N/O) 2
(N/O) 4
(N/O) 6
21 (AUX)(N/C) 22
1
3
5
(N/C) 2
(N/C) 4
(N/C) 6
1
3
5
(N/O) 2
(N/O) 4
(N/O) 6
21 (AUX)(N/C) 22
6
5
44
43 (N/C)
C (COM)
L (N/O)
C (COM)
H (N/O)
H
(N/C)
L (N/C)
U
V
W
U
V
W
13 (AUX)(N/O) 14
BREAKS ON WATER
FLOW RATE FALLING
(N/C) 1
(N/O) 4 7 (COM)
AB
7 (COM)(N/O) 8
(N/C) 9
(COM) C
(N/O) H
L
(N/C)
FRIDGE CCT 2
(COM) C
(N/O) H
L
(N/C)
6 (N/O)
9 (COM)
3 (N/C)
AB
(N/C)
4 (N/O)
7 (COM)
1 (N/C)
(N/C) (N/C)
8
7
OUT 1OUT 2
13 (AUX)(N/O) 14
CONTROL
2.5A
MCB SETTINGS
COMPRESSORS 1 & 2 FANS 1 & 2
3.3A38.9A
ALL OTHER CONTACTS SHOWN IN DE-ENERGISED STATE BUT WITH REFRIGERATION CIRCUIT FULLY CHARGED
WHERE CONTACTS ARE MARKED (N/O) OR (N/C) ON CIRCUIT DIAGRAM ABOVE CONDITIONS APPLY
FRIDGE CIRCUIT 2
REVERSING VALVE
FAN1 MCB AUX BLOCK ALARM
TRIP = BREAK CONTACT
FRIDGE CIRCUIT 1
FRIDGE CIRCUIT 2
COMP 2 HEATER
COMP 1 CONTACTOR
COMP 2 CIRCUIT BREAKER
TRIP / OFF = BREAK CONTACT
FAN 2
CONTACTOR
COMPRESSOR 1
MCB AUX BLOCK
TRIP / OFF = BREAK
CONTACT
COMPRESSOR 2
CONTACTOR
FRIDGE
CIRCUIT 2
DEFROST STAT
(BREAKS TO 'H' ON
TEMP FALLING)
PP90EHC THREE PHASE (200V 3 ~ 60Hz)
23
SD566250 ISSUE 35

Related product manuals