EasyManua.ls Logo

Calorex Pro-Pac PPT45EHC - Page 89

Calorex Pro-Pac PPT45EHC
104 pages
Print Icon
To Next Page IconTo Next Page
To Next Page IconTo Next Page
To Previous Page IconTo Previous Page
To Previous Page IconTo Previous Page
Loading...
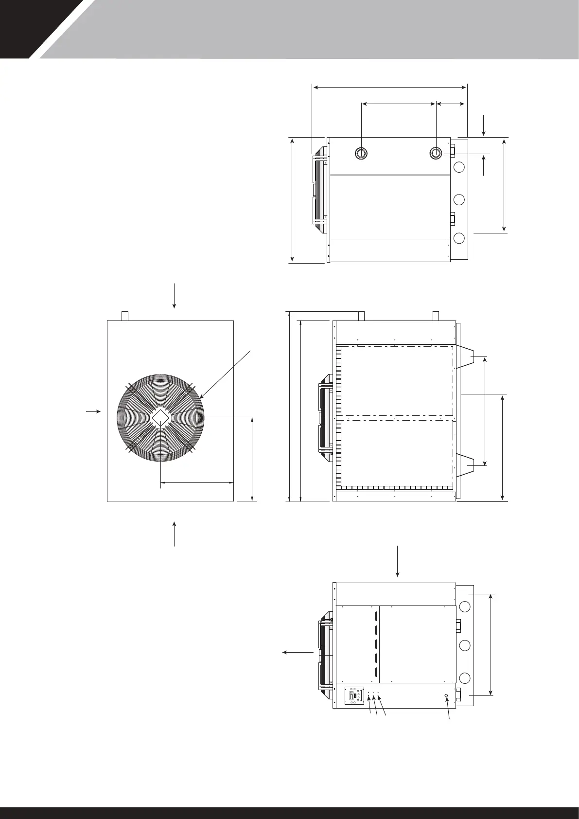
Pro-Pac PPT45EHC
DIMENSIONS EN mm
EDITION 1
LAISSER 500mm D'ESPACE
POUR ACCEDER AUX
PANNEAUX DE SERVICE
ALIMENTATION
1590
1665
1054
POSITION
CONDENSAT (BASE)
*985
SORTIE
D'EAU
ENTREE
D'EAU
*POINTS DE RACCORDEMENT POUR FIXER LA MACHINE AU SOL
CONSOLE
U
P
10
RED
AMBER
RED
AMBER
RED
GREEN
GREEN
CLEAR
*970
ENTREE
D'AIR
SORTIE D'AIR
PRESOSSTAT HP
PRESSOSTAT BP
PRESSOSTAT BP
(LIMITE DE
REFROIDISSEMENT)
PANNEAU
DE
SERVICE
PANNEAU
ELECTRIQUE
DE SERVICE
735
610
PANNEAU DE
SERVICE
PANNEAU
DE SERVICE
PANNEAU DE
SERVICE
DIAMETRE DU
VENTILATEUR 730
PANNEAU
DE
SERVICE
1060
1330
850
POSITION
CONDENSAT (BASE)
255.5
800.5
65
37
SD566250 ISSUE 35

Related product manuals