EasyManua.ls Logo

ClimateMaster tranquility 30 - DXM2 Layout and Connections; Low Water Temperature Cutout Selection

ClimateMaster tranquility 30
60 pages
Print Icon
To Next Page IconTo Next Page
To Next Page IconTo Next Page
To Previous Page IconTo Previous Page
To Previous Page IconTo Previous Page
Loading...
37
climatemaster.com
PRELIMINARY
Tranquility
®
30 Digital (TE) Series IOM - 60Hz HFC-410A
Rev.: 3 Aug., 2012B
DXM2 Layout and Connections
P1
Alarm
Relay
Comp
Relay
O
Y1
Y2
W
G
C
R
AL1
24Vdc
EH1
EH2
P6
R
C
Off On
JW3
A
OVR
ESD
C
R
NSB
AL2
JW1
Acc1
Relay
Acc2
Relay
H
COM1
NC1
NO1
COM2
NC2
NO2
P3
CO
RV
RV
LT1
LT1
LT2
LT2
LP
LP
HP
HP
P7
Status
Fault
R
R
CC
CCG
CO
S1
S2
1
12
1
4
e
sU
yr
o
tcaF
(240Vac)
Com
N.O.
Fan Enable
Micro
U1
Off On
P2
COH
COM
AO2
P11
Gnd
T1
P10
T2 T2 T3 T3 T4 T4
T5
P9
T5
T6 T6
A0-1 A0-2
Off On
S3
RV
Relay
CCH
Relay
Test
P5
B-
Gnd
P4
A+ 24V
(240Vac)
Fan Speed
N.O.
N.C.
12V
OUT
Gnd
P8
IN
NC
P12
1 2 3 4
1 2 3 4 5 6 7 8
1 2 3 4 5 6 7 8
Service tool
connection
Communicating
stat connection
Conventional
stat connection
Cabinet
temperature
sensor
(with variable
speed pump)
24V to compressor
second-stage solenoid
for Y2/full
load capacity
Use 4 mounting screws
#6 sheet metal screw
1” long
Configure
modulating valve
or variable
speed pump
Variable
speed pump
Entering
water temp
Leaving
water temp
Leaving
air temp
Factory low
voltage molex
connection for
electric heat
harness
Factory low
voltage molex
connection for
unit harness
Entering Hot water
Temperature
Compressor Discharge
temperature
ECM Motor
Connection
Test Button to
Speed up Time Delays
Communications
and HWG
Settings
Water Coil
Low Temp
Limit Setting
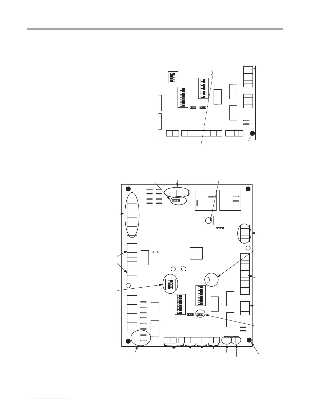
Figure 29: DXM2 Layout and Connections
Figure 25: LT1 Limit Setting
Comp
Relay
24Vdc
EH1
EH2
P6
Off On
JW3
c
1
a
y
c
2
a
y
CO
RV
RV
LT2
LT2
P7
CC
CCG
CO
S1
S2
12
1
4
Off On
AO2
P11
Gnd
T1
P10
T2 T2 T3 T3 T4 T4
T5
P9
T5
T6 T6
A0-1 A0-2
Off On
S3
RV
Relay
CCH
Relay
1 2 3 4
1 2 3 4 5 6 7 8
1 2 3 4 5 6 7 8
DXM2 PCB
JW3-LT1 jumper should be clipped
for low temperature (antifreeze) operation
Low Water Temperature Cutout Selection
The DXM2 control allows the eld selection of low water
(or water-antifreeze solution) temperature limit by clipping
jumper JW3, which changes the fault cutout temperature
associated with thermistor LT1. Note that the LT1 thermistor
is located on the refrigerant line between the coaxial heat
exchanger and expansion device (TXV). Therefore, LT1 is
sensing refrigerant temperature, not water temperature,
which is a better indication of how water ow rate/
temperature is affecting the refrigeration circuit.
The factory setting for LT1 is for systems using water
(30°F [-1.1°C] refrigerant temperature cutout or fallout). In
low water temperature (extended range) applications with
antifreeze (most ground loops), jumper JW3 should be
clipped as shown in Figure 25 to change the setting to 10°F
[-12.2°C] refrigerant cutout or fallout temperature, a more
suitable temperature when using an antifreeze solution.
All residential units include
water/refrigerant circuit
insulation to prevent internal
condensation, which is
required when operating with
entering water temperatures
below 59°F [15°C].

Related product manuals