EasyManua.ls Logo

ClimateMaster Tranquility TSM Series - Page 82

ClimateMaster Tranquility TSM Series
88 pages
Print Icon
To Next Page IconTo Next Page
To Next Page IconTo Next Page
To Previous Page IconTo Previous Page
To Previous Page IconTo Previous Page
Loading...
CLIMATEMASTER WATER-SOURCE HEAT PUMPS
TSM/TSL Vertical Stack
Rev.: January 18, 2021
ClimateMaster Water-Source Heat Pumps
82
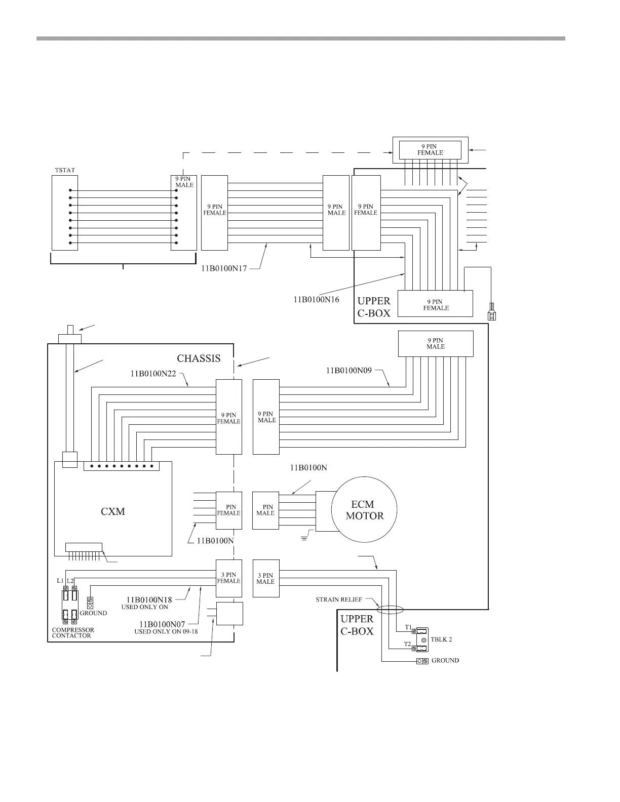
Wire Harnesses for 15-36 ECM-CT Motor w/CXM
Use for Wire Harness Part Numbers Only
A91558_ _
THERMOSTAT (6”)
Note 1
(30”)
FOR ADA OPTION ONLY
P1
TEST
PINS
(72”)
(30”)
(72”)
(65”)
(65”)
24-36
11B0100N19 (30”)
USED ONLY ON 30-36
11B0100N08 (30”)
USED ONLY ON 9-24
PUSH BUTTON N.O.
SWITCH TO PUT
CXM IN TEST MODE
11B0003N05
Surface Mount Option - Make Connect Here
* *
Red
Yellow
Blue
Orange
Brown
Gray
White
Violet
1
2
3
4
5
6
7
8
P2
12 PIN
11B0100N11
S11S0021N02,04,06
Cabinet Whip (15,25,35 Ft.)
2
*
Molexs not included
(12”)
FOR ADA ONLY
11B0100N15 (30”)
Surface Mount Option Only
11B0100N14 (12”) Remote
No Whip Option Only
2 X 4
SURFACE BOX
ON CABINET


Note 2

(72”)
Chassis Bracket
Behind Air Coil
(36”)




33
Notes:
1. A91558 - Thermostat connect to ADA Panel, Remote cabinet whip, or Surface box on cabinet. Number of wires will vary.
2. For MPC or LON need 11B0100N24 (in cabinet 12”) and 11B0100N23 (connects cabinet to chassis 30”)
3. Use unit wire diagram for wire colors and connection points.