EasyManua.ls Logo

Combat HVAC NRG Control - Interface Relay Wiring for Multiple Models CTU 70 - 115

Combat HVAC NRG Control
48 pages
Print Icon
To Next Page IconTo Next Page
To Next Page IconTo Next Page
To Previous Page IconTo Previous Page
To Previous Page IconTo Previous Page
Loading...
SECTION 4: WIRING
13 of 40
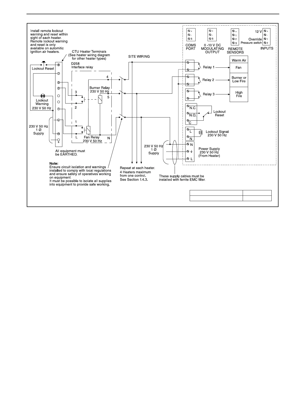
4.7 Interface Relay Wiring for Multiple Models CTU 75 - 115
Description Part Number
Interface Relay Assembly D258

Table of Contents