EasyManua.ls Logo

Combat HVAC NRG Control - MGB;MOB Range Wiring - 3 Ø Cabinet Heaters; Cabinet Heater Remote Lockout Reset Wiring (with THERMOWATT Ignition Control)

Combat HVAC NRG Control
48 pages
Print Icon
To Next Page IconTo Next Page
To Next Page IconTo Next Page
To Previous Page IconTo Previous Page
To Previous Page IconTo Previous Page
Loading...
16 of 40
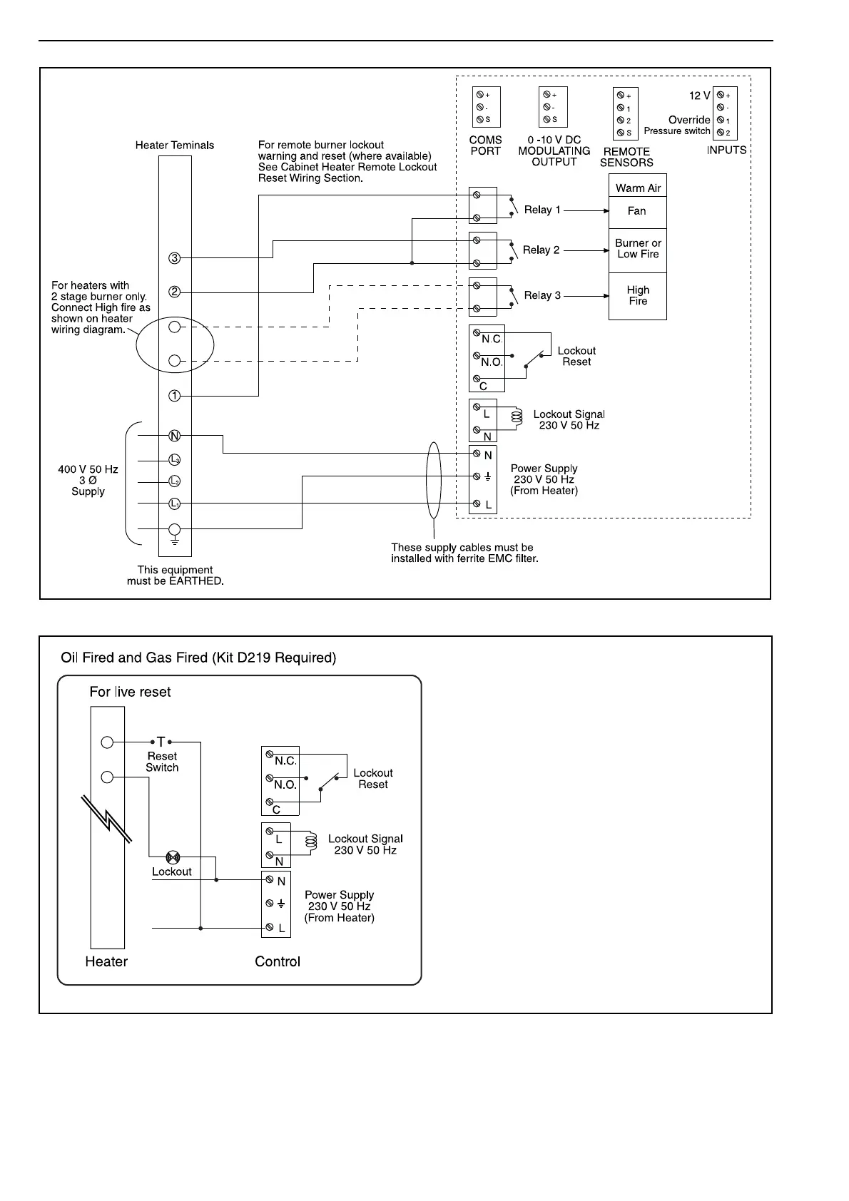
4.10 MGB/MOB Range Wiring - 3 Ø Cabinet Heaters
4.11 Cabinet Heater Remote Lockout Reset Wiring (With THERMOWATT Ignition Control)
COMBAT HVAC NRG CONTROL INSTALLATION, OPERATION AND SERVICE MANUAL
7
8

Table of Contents