EasyManua.ls Logo

COMBISAFE System Mk II - Technical Data: Main Parts

COMBISAFE System Mk II
46 pages
Print Icon
To Next Page IconTo Next Page
To Next Page IconTo Next Page
To Previous Page IconTo Previous Page
To Previous Page IconTo Previous Page
Loading...
Loading System MkII Technical Data
9
Technical Data
Main Parts
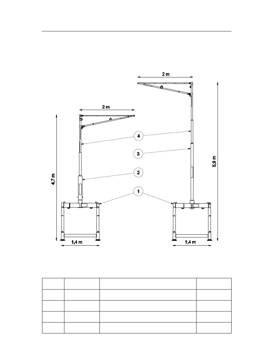
Figure 3. Main parts of the Loading System MkII with the SkyReach Anchor
installed.
Item
Art no.
Designation
Weight
1
8800
Loading System MkII Base
250 kg
2
11468
Top Column 4.7
25 kg
3
8801
SkyReach Adaptor 5.9
27 kg
4
8100
SkyReach Anchor
25 kg