EasyManua.ls Logo

CommScope CMC-21 - Cabinet Views

CommScope CMC-21
38 pages
Print Icon
To Next Page IconTo Next Page
To Next Page IconTo Next Page
To Previous Page IconTo Previous Page
To Previous Page IconTo Previous Page
Loading...
CommScope Instruction Guide
860647713, Rev B, V.05
Page 6
38 Pages
Cabinet Views
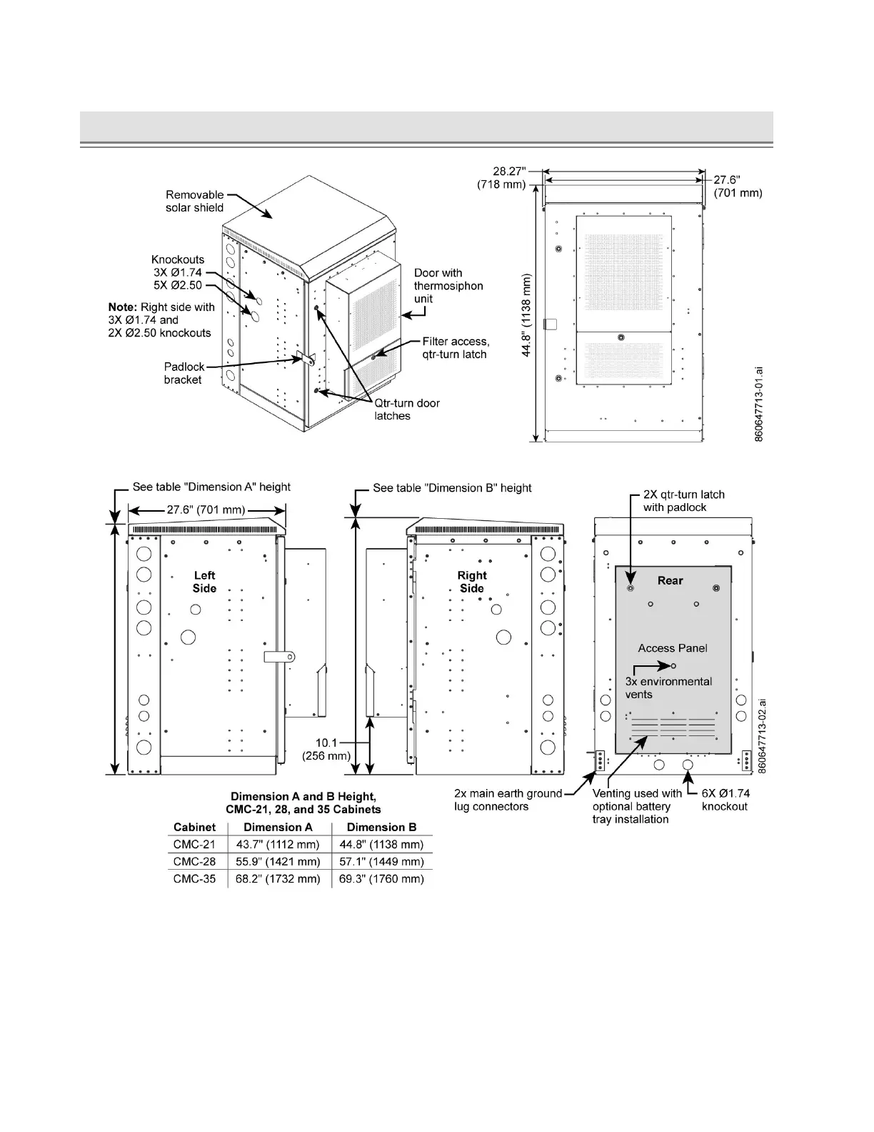
Figure 1. Front Views – CMC-21 Example
Figure 2. Left, Rear, and Right ViewsCMC-21 Example

Related product manuals