EasyManua.ls Logo

CommScope CMC-21 - Step 5. Route and Connect Cables

CommScope CMC-21
38 pages
Print Icon
To Next Page IconTo Next Page
To Next Page IconTo Next Page
To Previous Page IconTo Previous Page
To Previous Page IconTo Previous Page
Loading...
Material ID 860647713
Rev B, V.05, February 2022
Page 17
38 Pages
► Step 5. Route and Connect Cables
Important:
A licensed electrician is to install all cabinet electrical connections conforming to NEC, state,
and local codes. Properly ground all site equipment before making any electrical connections.
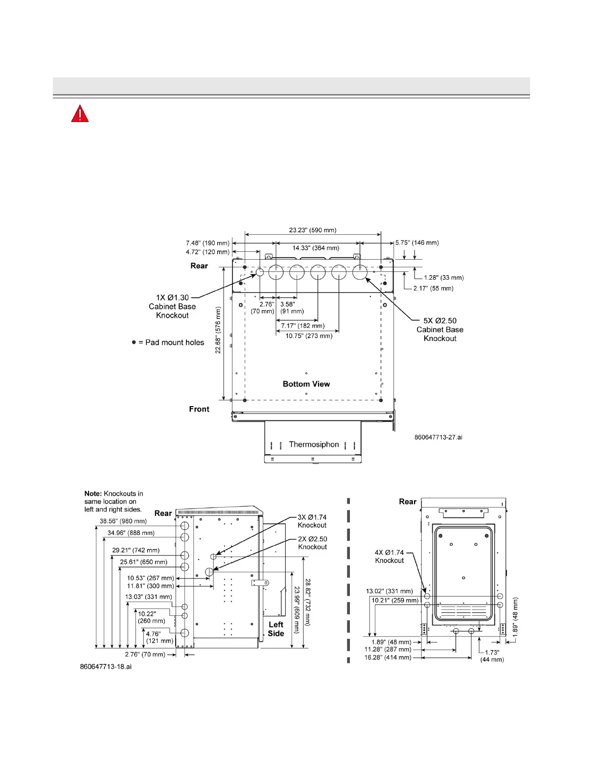
If routing cable through pad (structure), remove floor knockouts (punch outside to inside) before
placing cabinet onto pad; Figure 14, Figure 15, Figure 24.
Bring in cable through knockouts on left and right walls and cabinet base, Figure 24 to Figure 27.
Use door key to open and remove rear panel for cable access, Figure 9.
Use knockouts on cabinet topside only for stacking two cabinets (CMC-21 only), Figure 17.
Figure 24. Cabinet Base Knockout Locations, CMC-21, 28, 35
Figure 25. Cabinet Knockout Locations, CMC-21

Related product manuals