EasyManua.ls Logo

Condair DL - Installation; 4.1 Installation overview

Condair DL
52 pages
Print Icon
To Next Page IconTo Next Page
To Next Page IconTo Next Page
To Previous Page IconTo Previous Page
To Previous Page IconTo Previous Page
Loading...
10 Installation
4 Installation
1 - Mounting the post evaporation unit --> see chapter 4.2 – Installation of the humidication unit
2 - Mounting the nozzle system --> see chapter 4.4 – Positioning and mounting the control unit
3 - Mounting the control unit --> see chapter 4.4 – Positioning and mounting the control unit
4 - Mounting the central unit --> see chapter 4.3 – Positioning and mounting the central unit
5 - Water installation --> see chapter 4.5 – Water installation
6 - Electrical installation --> see chapter 4.6 – Electrical installation
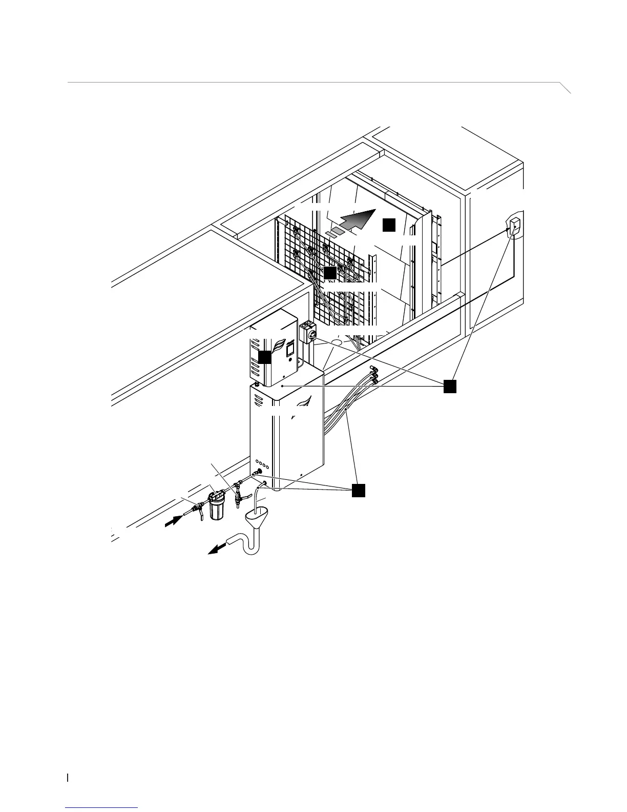
Abb. 1: Installation overview Condair DL
4.1 Installation overview
1
2
3
6
5
Air ow direction
Humidity sensor /
Humidity controller **
Post-evaporation unit
Nozzle system
Electrical isolator
Control unit
** by client
Drain hose
Open tundish with
drain trap **
Test valve **
Water lter **
Shut-off valve **
RO water supply
Central unit
min. 3 m

Related product manuals