EasyManua.ls Logo

CPI GRYPHON - Disegni Dimensionali

CPI GRYPHON
223 pages
Print Icon
To Next Page IconTo Next Page
To Next Page IconTo Next Page
To Previous Page IconTo Previous Page
To Previous Page IconTo Previous Page
Loading...
Rendiresto Gryphon™ - Guida per l'utente
© 2021 Crane Payment Innovations.
Tutti i diritti riservati.
IT 51
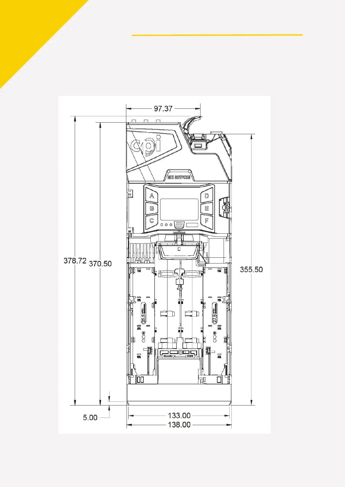
DISEGNI DIMENSIONALI
Tutte le misure nei disegni delle pagine seguenti sono in millimetri.

Table of Contents

Other manuals for CPI GRYPHON

Related product manuals