EasyManua.ls Logo

CPS SCH100KTL-DO-600 - Page 37

CPS SCH100KTL-DO-600
111 pages
Print Icon
To Next Page IconTo Next Page
To Next Page IconTo Next Page
To Previous Page IconTo Previous Page
To Previous Page IconTo Previous Page
Loading...
33
L1 L2
L3
5 8 6
87
9
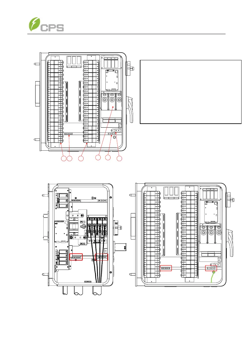
Figure 3-22B Internal Connection Points (Standard Wire-box)
Figure 3-23 Internal Grounding Points
L1 L2
L3
A B
5 Positive DC input connections
6 Negative DC input connections
7 AC output terminals
8 Grounding terminals
9 Neutral Terminal

Related product manuals