EasyManua.ls Logo

Culligan GBE - Aux Input

Culligan GBE
74 pages
Print Icon
To Next Page IconTo Next Page
To Next Page IconTo Next Page
To Previous Page IconTo Previous Page
To Previous Page IconTo Previous Page
Loading...
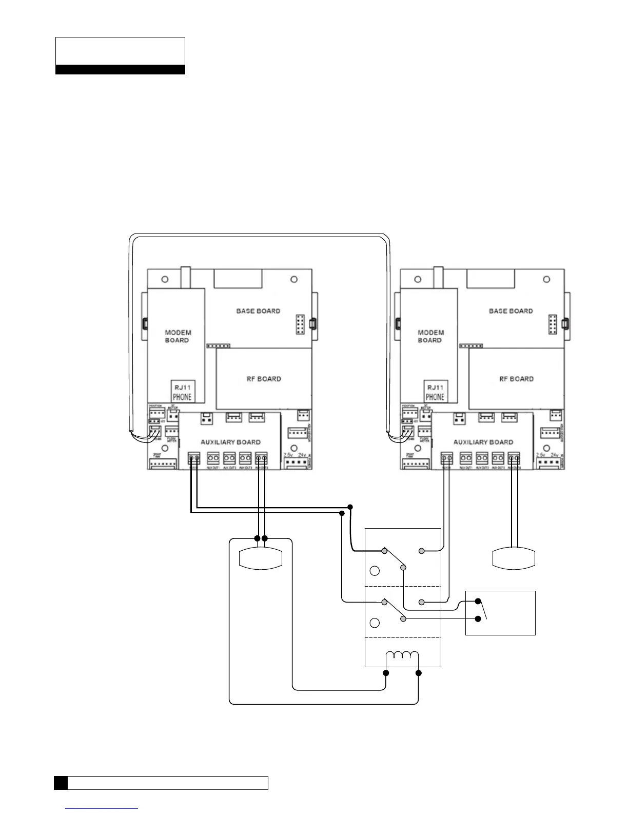
Auxiliary Input (Optional)
One auxiliary input is provided for optional signal devices such as remote push buttons, differential pressure
switches, hardness monitors, turbid meters, etc. for the purpose of receiving a regeneration signal.
Select an UN-POWERED contact within the remote device that will close when regeneration is desired. The
duration of the switch closure can be as low as 0 seconds; 6 seconds is the recommended minimum and default
but can be as long as 999 seconds. The contact must automatically open following the start of a regeneration
sequence. Connect this contact to the Aux In terminal shown in Figure 22. The illustration below is an example
of how to use an external source to initiate regeneration.
NC NO
1
POLE
NC NO
2
POLE
C
C
SOL
Regen Signal
EXTERNAL
SOURCE
24V DPDT
RELAY
DUPLEX ALTERNATING WITH EXTERNAL SOURCE
SOL
Communication Cable
01016327
Figure 22
Schematic
Programming 18
17 CULLIGAN GLOBAL ELECTRONIC CONTROLLER

Related product manuals