EasyManua.ls Logo

Culligan GBE - Progressive; Parallel Flow

Culligan GBE
74 pages
Print Icon
To Next Page IconTo Next Page
To Next Page IconTo Next Page
To Previous Page IconTo Previous Page
To Previous Page IconTo Previous Page
Loading...
Progressive Flow or Parallel Flow
IMPORTANT
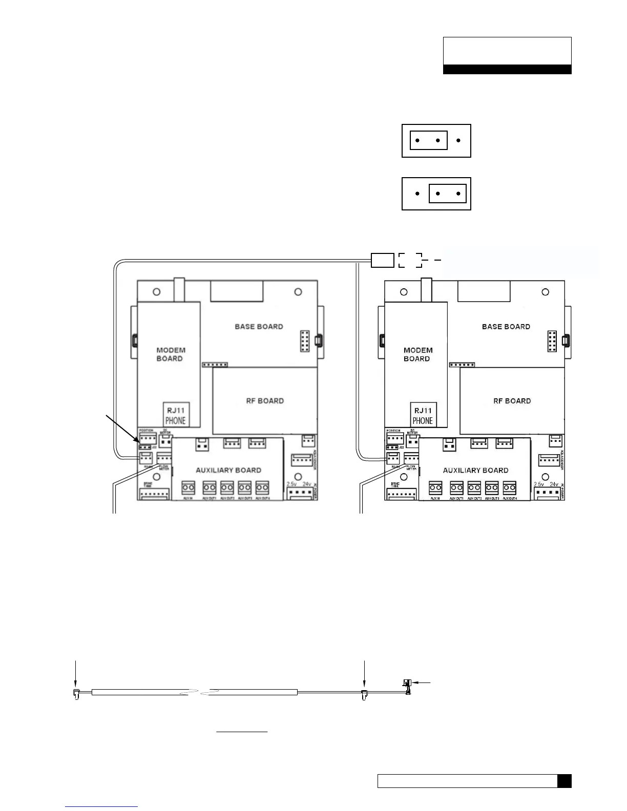
Setting the Jumpers for Progressive Flow
For progressive flow to operate properly, the first and last units must
have the jumpers set to pins 1 and 2 (see figure at right). All middle
units should have the jumpers on pins 2 and 3 (see figure at right).
The diagram below (figure 17) shows duplex connections. Repeat the
connections on any additional systems.
Progressive/Parallel Communication Cable 01016327
Schematic 12
11 CULLIGAN GLOBAL ELECTRONIC CONTROLLER
Schematic
To RS 485 Comm Port
on GBE Circuit Board, #1
CABLE 01016327
To RS 485 Comm Port
on GBE Circuit Board, #2
PARALLEL
Additional communication cable
connections are used when there
are 3 or more controls. Connect
end of 2nd-(01016327) cable
to this connector and other end of
cable to RS 485 Comm Port on
3rd GBE Circuit Board.
To Additional Units
(if necessary)
Communication Cable 01016327
Jumper
Location
Figure 17
Flow Meter Flow Meter
Unit 1 Unit 2
Jumper location for
first and last units
(end units).
Jumper location for
middle units.
1 2 3

Related product manuals