EasyManua.ls Logo

Dahua NVR5208-EI - Page 37

Dahua NVR5208-EI
489 pages
Print Icon
To Next Page IconTo Next Page
To Next Page IconTo Next Page
To Previous Page IconTo Previous Page
To Previous Page IconTo Previous Page
Loading...
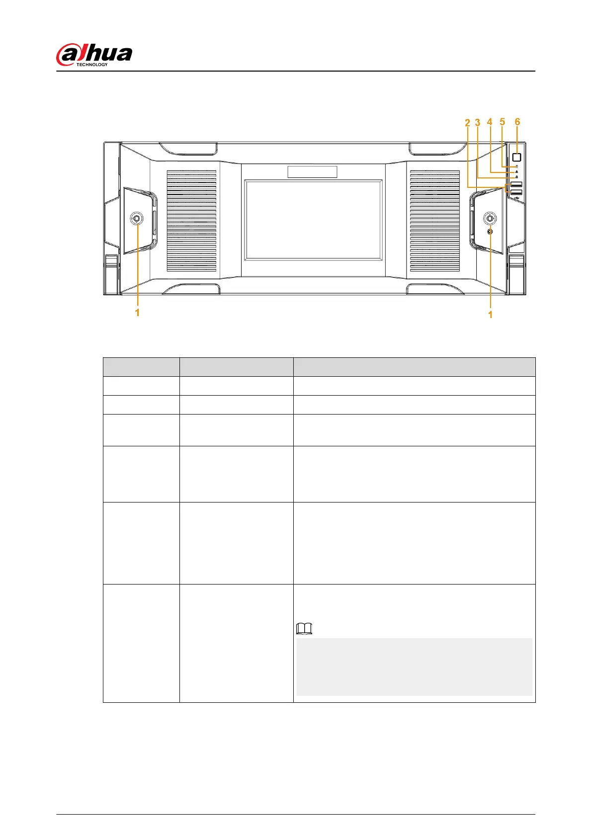
Figure 2-32 Front panel
Table 2-16 Icons
No. Name Function
1 Front panel lock
2 USB port
3 Network indicator light
The blue network indicator light is on after you
connected the device to the network.
4 Alarm indicator light
The alarm indicator light becomes on once an alarm
occurred. It becomes on via the software detection.
The indicator light becomes on when there is a local
alarm.
5
System HDD indicator
light
The blue light becomes on after system booted up
properly.
In the system HDD, there are device important
conguration le, factory default conguration le,
and device initial boot up data.
6 Power button
Press it once to turn on the device.
Press it for a long time to turn o the device.
We do not recommend you turn o the device in
this way.
Press power button for a long time or pull out the
power cable might result in device auto restart.
You can see there are 24 HDDs. From the left to the right and from the top to the bottom, it ranges
from 1-4, 5-8, 9-12, 13-16, 17-20, 21-24.
You can see there are two indicator lights on the HDD bracket.
User's Manual
21

Table of Contents

Related product manuals