EasyManua.ls Logo

Daikin Enfinity - Technical Diagrams and Troubleshooting; Typical Wiring Diagrams

Daikin Enfinity
56 pages
Print Icon
To Next Page IconTo Next Page
To Next Page IconTo Next Page
To Previous Page IconTo Previous Page
To Previous Page IconTo Previous Page
Loading...
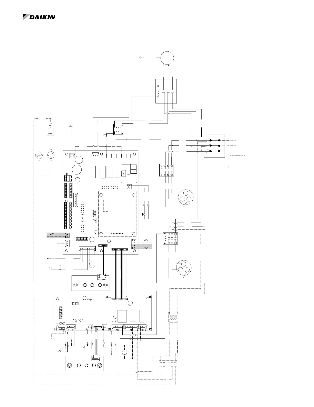
tyPiCal Wiring diagraMs
MicroTech III controller with I/O expansion module with hot gas reheat (HGRH)
208/230, 460, 575-60-3 (1.5 hp or less)
YEL 14
BLU 15
LED1
SLTS
RV
LED1
GRY 46
BLU 41
BLU 40
RAT
LED2
IOEXP
COS
BLK 60
BLK 61
SEE NOTE
BLU 21
LED2
T1
TB1
YEL
RED
L1
L2
L3
CM-1
BLK
L1
T2
T3
L3
L2
L1
SERVICE &
DISCONNECT
L3L2
YEL 18
JP_2
JP_3
JP_4
JP_5
JP_6
JP_7
JP_8
H1
H2
N3
N2
N1
L1-3
L1-2
L1-1
H3
H5
H4
H7
H6
H8
H9
TB2
TEST-1
TB1
TB3
RUN PRG
JTAG
BLU 20
LP2
HP2
SLTS2
1
1
1
1
1
JP1
JP8
JTAG
RV2
YEL 11
RED 12
CC1
BLK 1
YEL 2
RED 3
BRN 52
BRN 53
BLU 42
BLU 43
BLK 62
BLK 63
YEL 19
LP
T3
BLK 10
YEL 8 (L2)
RED 9 (L3)
R1
HP
BRN 55
BRN 54
GRN/YEL 97
FAN
MOTOR
LWT
DAT
YEL
BLU
YEL 45
EWT
BLK/RED-460V
RED-208V
ORG-230V
BLK-575V
1
RED 86
WHT 85
R2
1
3
BLK 80
YEL 82
HUMIDISTAT SIGNAL
AUX HEAT
24VAC COMMON
BLK 80
GND
JP_1
BLK 4
YEL 5
RED 6
YEL 27
BLU 28
CC2
RED
YEL
BLK
L3
L2
L1
X2
BLK
YEL
BLU
YEL 89
BLK 81
TB2
ORG 87 YEL 83
YEL 88
R2
2
54
ORG 84
H
HG1
HG2
H
N
24V
X1
COM
BLK
BLK/RED - 460V
RED - 208v
ORG - 230V
BLK - 575V
CM-2
BLK7 (L1)
IO Expansion Module
C - 24VAC COMMON
O - W3 - HEAT -3
G - FAN
Y1 - COOL - 1
Y2 - COOL 2
W1 - HEAT - 1
W2 - HEAT - 2
A - ALARM OUTPUT
5 - DC SIGNAL COM
4 - ROOM SENSOR/TO
3 - SETPOINT ADJUST
2 - FAN MODE/HT-CL-AUTO
1 - ROOM SENSOR LED
U - MARK IV - OCC/UNOCC
E - EMER SHTDN INPUT
R - 24VAC
Communication
Module
MicroTech III Controller
24V NO
24VAC COMMON
24V NC
Note: Switch L2/L3 fan
motor wires for
left-hand unit
Legend
Item Description
CC1 Circuit 1 Compressor Contactor
CC2 Circuit 2 Compressor Contactor
CM1 Circuit 1 Compressor
CM2 Circuit 2 Compressor
COS Condensate Overow Sensor
HP Circuit 1 High Pressure Switch
HP2 Circuit 2 High Pressure Switch
IOEXP I/O Expansion Board / Harness
LED1 LED Annunciator / Harness
LED2 LED Annunciator / Harness
*RAT Return Air Temp Sensor
*LWT Leaving Water Temp Sensor
LP Circuit 1 Low Pressure Switch
LP2 Circuit 2 Low Pressure Switch
SLTS Circuit 1 Suction Line Temp Sensor
SLTS2 Circuit 2 Suction Line Temp Sensor
R1 Fan Motor Starter
RV Circuit 1 Reversing Valve Solenoid
RV2 Circuit 2 Reversing Valve Solenoid
TB1 Power Terminal Block
X1 75 VA Transformer
*DAT Discharge Air Temp Sensor
EWT Entering Water Temp Sensor
R2 Relay HGRH
HG1 HGRH Solenoid 1
HG2 HGRH Solenoid 2
TB2 Terminal Block
X2 Transformer 24VAC Output
Note: Wiring diagrams are typical. For the latest
drawing version refer to the wiring diagram
located on the inside of the controls access
panel of the unit.
Gray tinted areas in the wiring diagram: Units
with factory installed communication module
include Discharge Air Temperature (DAT)
and Return Air Temperature (RAT) sensors
shipped loose and are eld installed. The
Leaving Water Temperature (LWT) sensor is
factory installed.
Notes: 1. “Run/Prg” Jumper to be in “Run”
position for normal operation
* Leaving Water (LWT), Discharge
Air (DAT) and Return Air
Temperature (RAT) sensors are
eld installed.
_ _ _ _
Denotes optional feature
www.DaikinApplied.com 34 LARGE VERTICAL WSHP IM 1059-12

Table of Contents

Related product manuals