EasyManua.ls Logo

Danfoss VLT AQUA Drive FC 202 - Terminal Locations - Frame Size E9

Danfoss VLT AQUA Drive FC 202
124 pages
Print Icon
To Next Page IconTo Next Page
To Next Page IconTo Next Page
To Previous Page IconTo Previous Page
To Previous Page IconTo Previous Page
Loading...
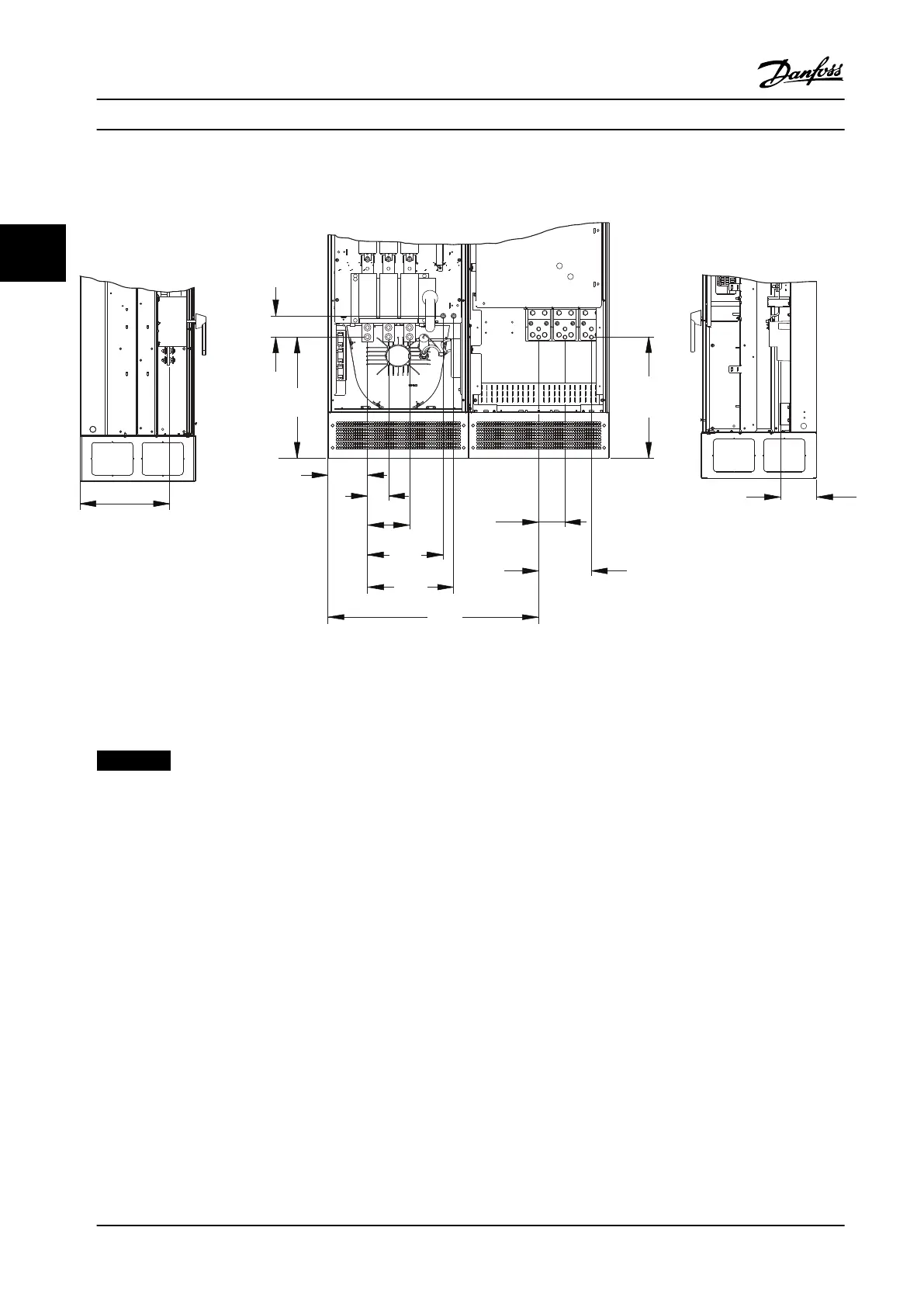
3.3.5 Terminal Locations - Frame Size E9
130BC604.10
383
[15.1]
518.0
[20.4]
90.0
[3.5]
153.8
[6.1]
517.5
[20.4]
225.0
[8.9]
112.5
[4]
900.0
[35.4]
368.3
[14.5]
323.3
[12.7]
180.0
[7.1]
90.0
[3.5]
168.7
[6.6]
MAINS
INPUT TERMINAL
MOTOR
OUTPUT TERMINAL
Figure 3.14 Frame Size E9 Terminal Locations
Allow for bend radius of heavy power cables.
NOTICE!
All E-frames are available with standard input terminals, fuse, or disconnect switch
Mechanical Installation
VLT
®
AQUA Drive FC 202 Low Harmonic Drive
30 Danfoss A/S © 10/2015 All rights reserved. MG21B322
33

Table of Contents

Other manuals for Danfoss VLT AQUA Drive FC 202

Related product manuals