EasyManua.ls Logo

Danfoss VLT FC 103 - Control Compartment Interior View

Danfoss VLT FC 103
182 pages
Print Icon
To Next Page IconTo Next Page
To Next Page IconTo Next Page
To Previous Page IconTo Previous Page
To Previous Page IconTo Previous Page
Loading...
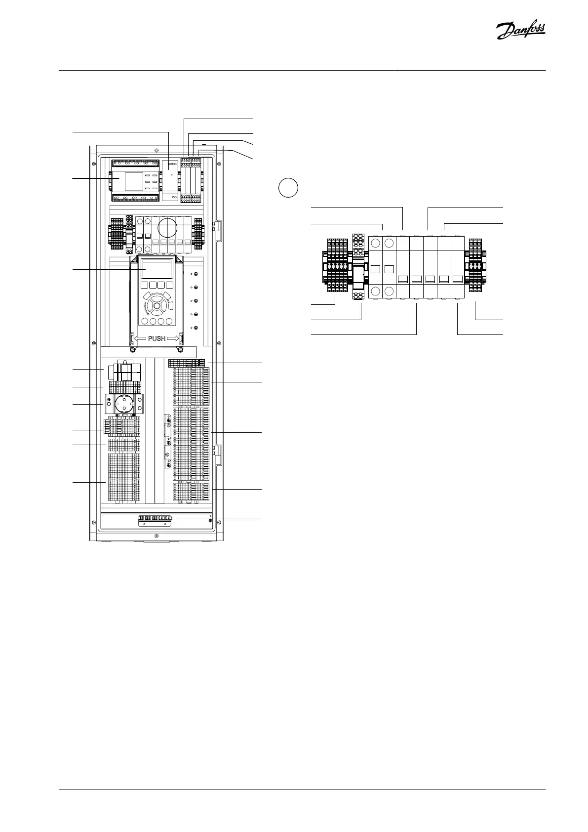
5.7.2 Control Compartment Interior View
e30bu140.10
2
17
15
16
18
14
20
19
21
22
3
A
6
7
8
9
24
25
26
1
10
11
A
12
13
4
5
23
27
Illustration 40: Layout of Control Compartment Interior with All Options
AQ357954340588en-000201 / 130R0881 | 69Danfoss A/S © 2020.09
Electrical Installation
VLT® Refrigeration Drive FC 103
Operating Guide

Table of Contents

Other manuals for Danfoss VLT FC 103

Related product manuals