EasyManua.ls Logo

Delta CFP2000 Series - Page 36

Delta CFP2000 Series
756 pages
Print Icon
To Next Page IconTo Next Page
To Next Page IconTo Next Page
To Previous Page IconTo Previous Page
To Previous Page IconTo Previous Page
Loading...
Chapter 1 IntroductionCFP2000
1-27
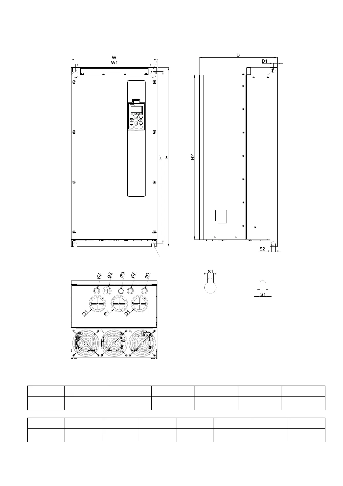
Frame D
D-3: VFD750FP4EA-41, VFD900FP4EA-41
Unit: mm [inch]
Frame W W1 H H1 H2 D
D-3
370.0
[14.57]
334.0
[13.15]
770.0
[30.31]
739.0
[29.09]
707.0
[27.83]
335.0
[13.19]
Frame D1 S1 S2 Φ1 Φ2 Φ3 Φ4
D-3
17.0
[0.67]
13.0
[0.51]
18.0
[0.71]
62.0
[2.44]
28.0
[1.10]
22.0
[0.87]
-
Figure 1-29
Table 1-15
See Detail A
See Detail B
Detail A
(Mounting Hole)
Detail B
(Mounting Hole)

Table of Contents

Related product manuals