EasyManua.ls Logo

Delta CFP2000 Series - Page 59

Delta CFP2000 Series
756 pages
Print Icon
To Next Page IconTo Next Page
To Next Page IconTo Next Page
To Previous Page IconTo Previous Page
To Previous Page IconTo Previous Page
Loading...
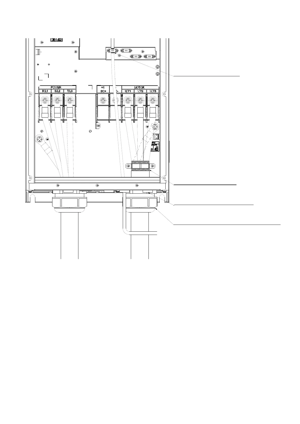
Chapter 4 WiringCFP2000
4-10
Frame D
Shielding for Control Cable
Shielding for Motor Cable
Grommet (4X) for Control Cable
Cable Range: 8~13mm
Cable Gland (2X) for Power and Motor Cables
(Prepared by end user self in accordance with
the cable O.D.)

Table of Contents

Related product manuals