EasyManua.ls Logo

Dexter Laundry DN20X2 - Section 2: Installation & Operation; Dryer Installation Code Conformity; Installation Clearances

Dexter Laundry DN20X2
54 pages
Print Icon
To Next Page IconTo Next Page
To Next Page IconTo Next Page
To Previous Page IconTo Previous Page
To Previous Page IconTo Previous Page
Loading...
1.
DRYER INSTALLATION
1. CODE CONFORMITY: All commercial dryer installations must conform with local codes, or in
the absence of local codes, with the latest edition of the National Fuel Gas Code ANSI
Z223.1. Canadian installations must comply with the current Standard CAN/CGA-B149
(.1 or .2) Installation Code for Gas Burning Appliances or Equipment, and local codes if
applicable. Australian installations must meet installation requirements and pipe sizing requirments
of AS/NZA 5601. The appliance, when installed, must be electrically grounded in
accordance with the latest edition of the National Electric Code, ANSI/NFPA70, or, when installed
in Canada, with Standard CSA C22.1 Canadian Electrical Code Part 1.
2. INSTALLATION CLEARANCES: This unit may be installed at the following alcove clearances:
I. Left Side 0”
II. Right Side 0”
III. Back 18” (457 mm) (Certied for 6” (150 mm) clearance; however, 18” (457 mm) clearance
is necessary behind the motors to allow servicing and maintenance.)
IV. Front 48” (1220 mm) (to allow use of dryer)
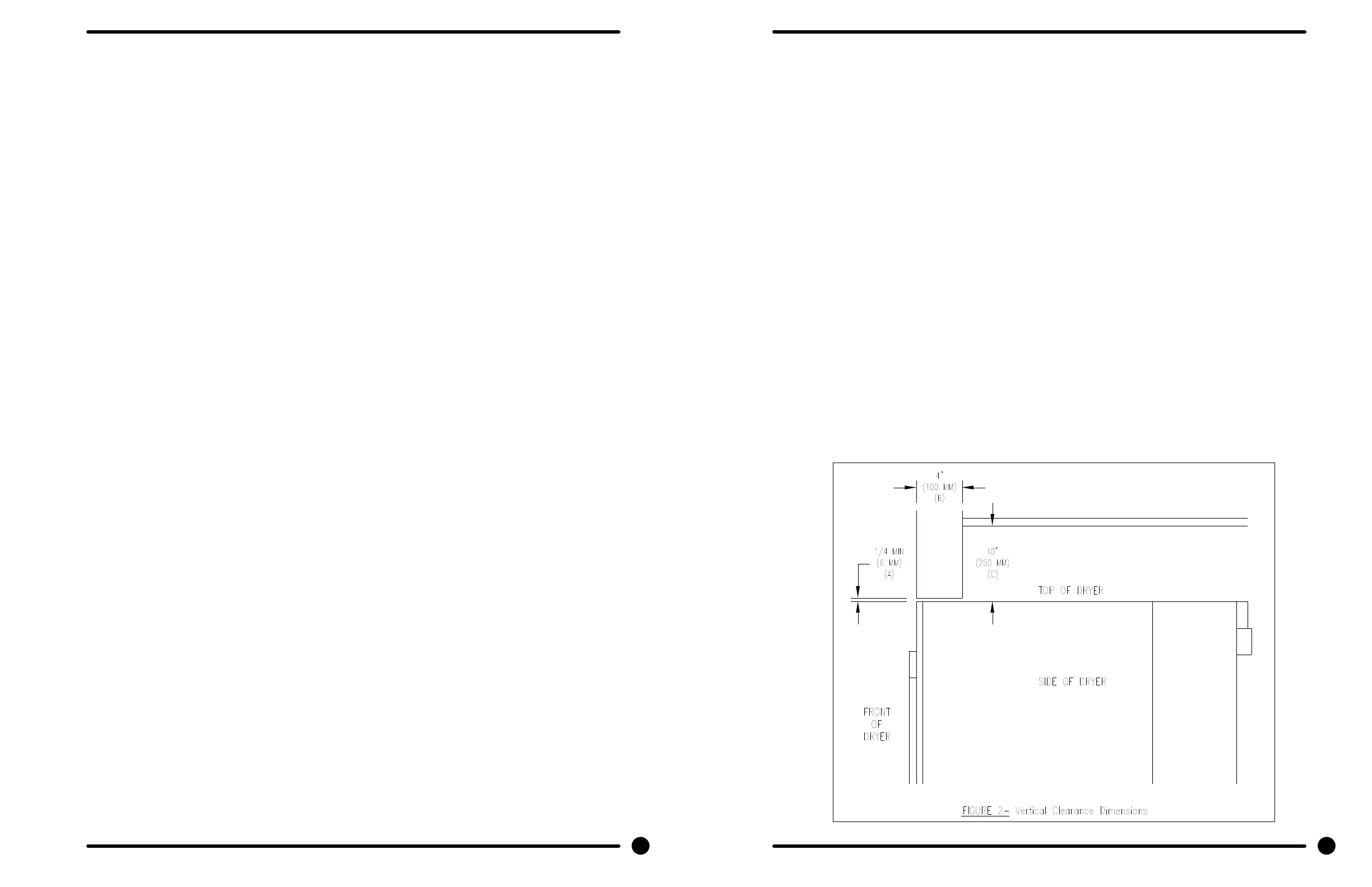
V. Top Refer to gure labeled “Vertical Clearance Dimensions”.
AB. Certication allows 0” clearance at the top 4” (100 mm) back from the front.
However, a 1/4” (6 mm) clearance should be allowed in case the dryer needs moving.
C. A 10” (250 mm) clearance is required from top at all other points.
VI. Floor This unit may be installed upon a combustible oor.
Do not obstruct the ow of combustion and ventilation air.
Maintain minimum of 1” (25 mm) clearance between duct and combustible material.
Refer to the label attached to the Belt Guard on the rear of the dryer for other installation information and
start-up instructions.
The sources of all make-up air and room ventilation air movement to all dryers must be located away
21
Part # 8533-108-001 10/22
20
Section 2:
Installation
& Operation
Part # 8533-108-001 10/22
Parts
Data
50Hz
Parts
Maintenance
Electric Heated
Parts Data
Machine
Specs.
Installation
& Operation
Trouble-
shooting
Machine
Service
Electrical
Wiring

Table of Contents

Related product manuals