EasyManua.ls Logo

DGSHAPE DWX-53DC - Dimensions

DGSHAPE DWX-53DC
70 pages
Print Icon
To Next Page IconTo Next Page
To Next Page IconTo Next Page
To Previous Page IconTo Previous Page
To Previous Page IconTo Previous Page
Loading...
Spe
cific
atio
ns
62
App
endi
x
ERRO
R
CAN
CEL
PAUS
E
POW
ER
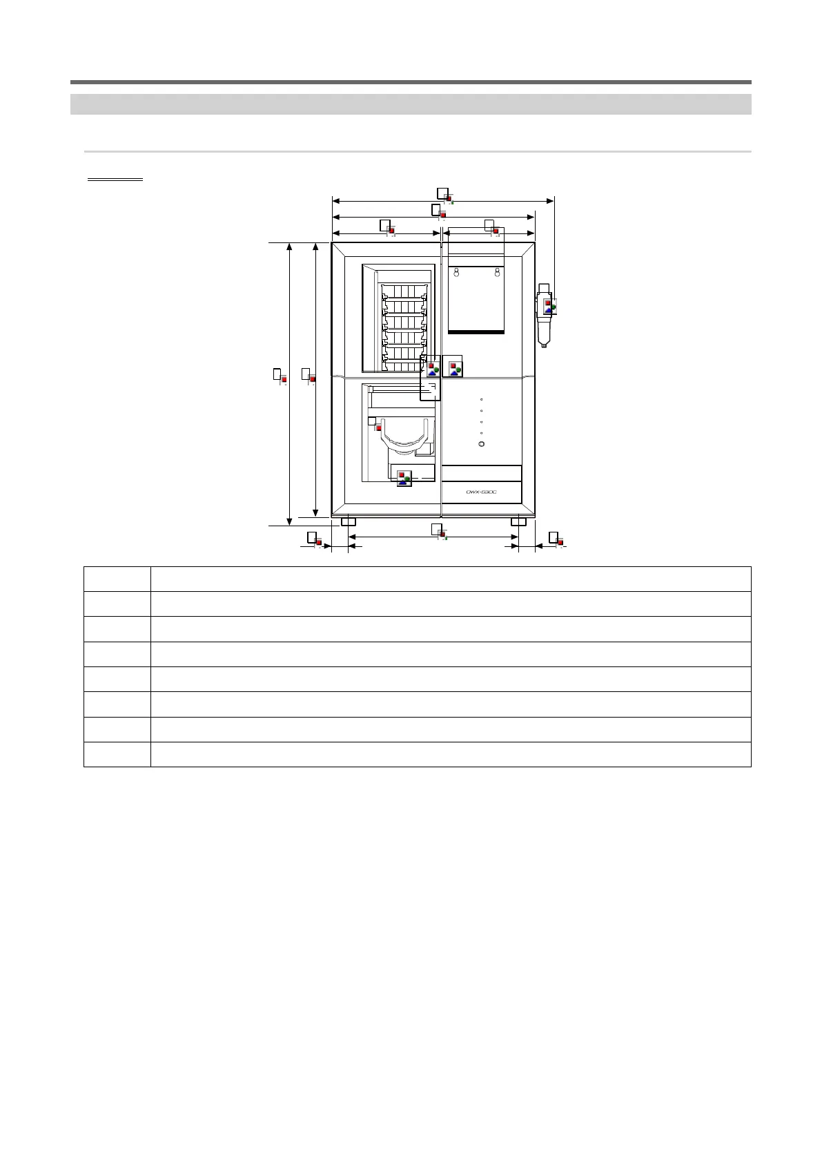
Dimensions
External Dimensions
Front face
A
650 mm
B
598 mm
C
321 mm
D
274 mm
E
807 mm
F
831 mm
G
500 mm
H
49 mm

Related product manuals