EasyManua.ls Logo

DOMUSA Evolution EV AC - 21 Electrical Diagram

Default Icon
40 pages
Print Icon
To Next Page IconTo Next Page
To Next Page IconTo Next Page
To Previous Page IconTo Previous Page
To Previous Page IconTo Previous Page
Loading...
25
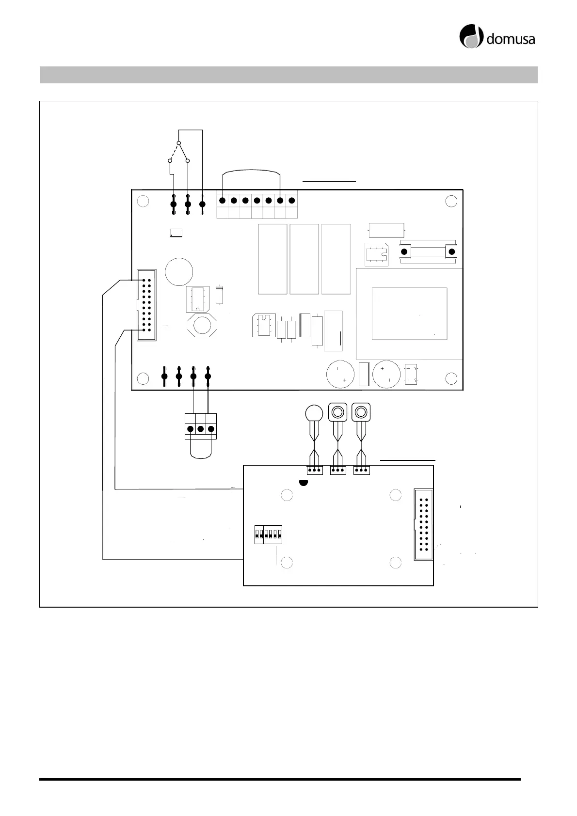
21 ELECTRICAL DIAGRAM
7
6
1 2
5
4
3
Fuse
J7
Supply card
T
S
C
2 1
Bridge
Pink
Black
White
Pink
J7
SP
PC PS
Display card
S1
ON
S2
ON
1 2 1 2 3 4
Red
Red
1 2
3
J6
TS: Safety thermostat.
SP: Pressure sensor.
PC: Heating potentiometer.
PS: Hot water potentiometer.
J6: Telephone relay connector.
J7: Board-to-board communication connector.
S1, S2: Boiler model selector.

Table of Contents

Related product manuals