EasyManua.ls Logo

dosatron D3 RE 3000 - Conselhos de Instalação

dosatron D3 RE 3000
Print Icon
To Next Page IconTo Next Page
To Next Page IconTo Next Page
To Previous Page IconTo Previous Page
To Previous Page IconTo Previous Page
Loading...
©
DOSATRON INTERNATIONAL / 227
PT
©
DOSATRON INTERNATIONAL / 227
©
DOSATRON INTERNATIONAL / 226
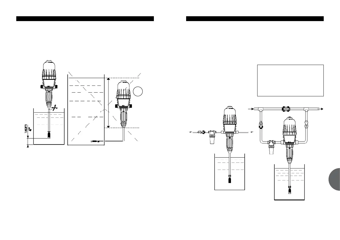
ATENÇÃO! Deixar o filtro a cerca de 10 cm [4”] do fundo do recipiente
contendo a solução de modo a evitar a aspiração de partículas não
solúveis que podem danificar o corpo doseador (Fig. 2).
- Não poisar o filtro no chão.
O nível da solução nunca deverá estar acima da entrada de água no
DOSATRON (de forma a evitar a sifonagem). (Fig. 3).
INSTALAÇÃO DO DOSATRON (cont.)
Fig. 2
Fig. 3
O QUE SE DEVE FAZER
O QUE NÃO SE DEVE
FAZER
CONSELHOS DE INSTALAÇÃO
CAUDAL EXCESSIVO (a titulo indicativo)
Se o DOSATRON fizer mais de 46 batidas, ou seja 23 ciclos em 15
segundos*, isto significa que atingiu sua capacidade máxima de caudal
superior. Para ir além deste número, escolha um DOSATRON com
capacidade de caudal de água superior.
*D3RE25IE = 30 batidas, 15 ciclos
Na canalização de água, as
montagens podem ser feitas em linha
(Fig. 4), em derivação recomendada
(Fig. 5). Se o caudal for superior aos
limites do DOSATRON, ver CAUDAL
EXCESSIVO.
A fim de preservar a longevidade do
DOSAT RON, aconselha-se a instalação
de um filtro (ex.: malha 300 - 60
mícrons de acordo com a qualidade da
sua água) a montante deste.
Esta precaução é indispensável
quando a água está carregada de
impurezas ou partículas, sobretudo se
a água vem de um poço.
O filtro é aconselhado e necessário
para que a garantia seja válida.
A montagem em derivação permite
a alimentação da instalação com
água limpa sem fazer funcionar o
DOSAT RON e permite a sua fácil
desmontagem.
Para qualquer instalação
na rede de água potável,
respeite as normas e regu-
lamentações em vigor no
seu país.
Fig. 4
Válvula
anti-
retorno
Comporta
Comporta
Filtro
Filtro
Fig. 5
NO !

Table of Contents

Related product manuals