EasyManua.ls Logo

EBS LX20B - Connecting LX20 B-5 D with Dual SIM Card Slots

EBS LX20B
67 pages
Print Icon
To Next Page IconTo Next Page
To Next Page IconTo Next Page
To Previous Page IconTo Previous Page
To Previous Page IconTo Previous Page
Loading...
LX20B Manual Page 11 / 67
BTT
Control input for verification of battery connected to EBS
power supply.
PWR
Control input connected to adequate EBS power supply
output. Purposed for monitoring AC power supply.
Manufacturer reserves the right to amend appearance of printed circuit
with no effect on functionality of device.
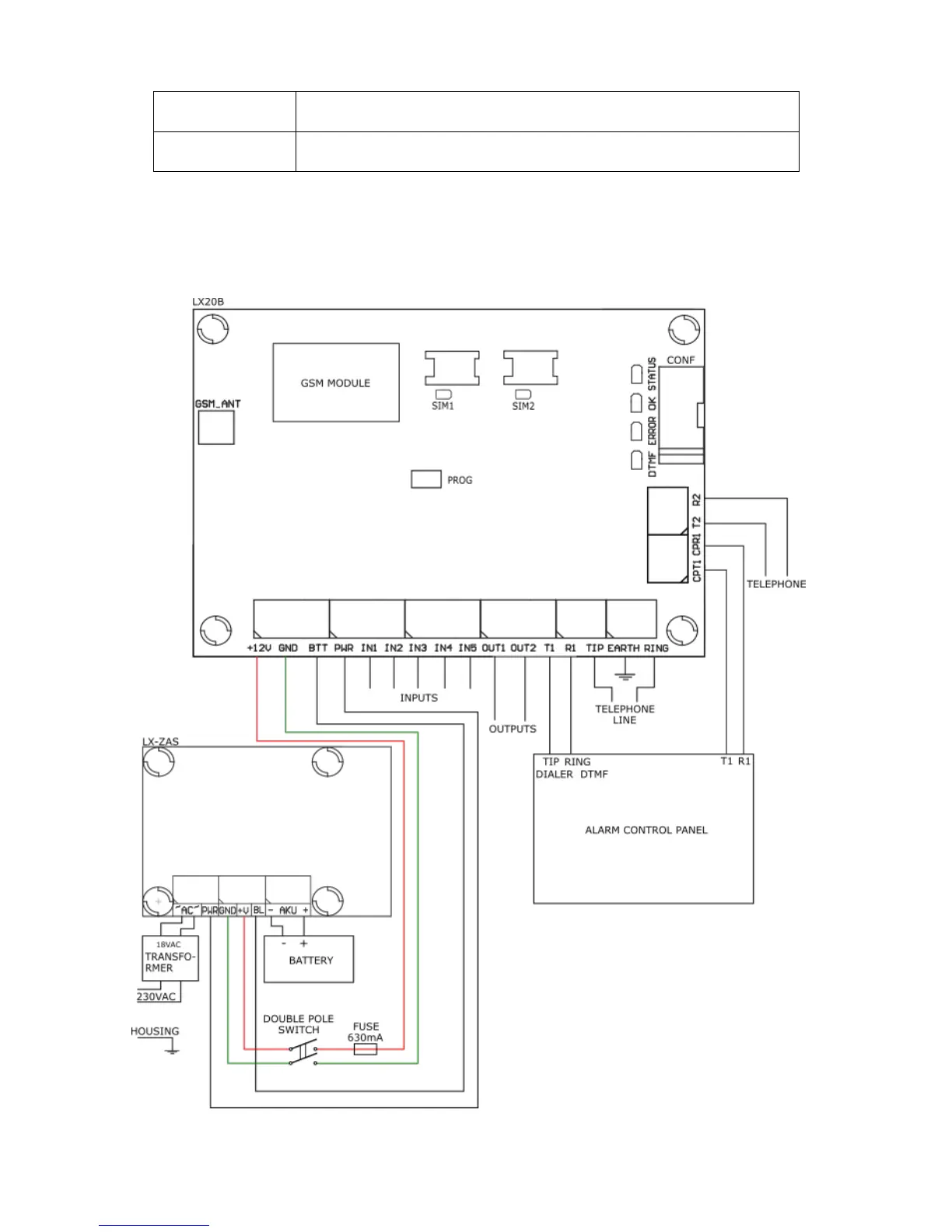
3.2. CONNECTING LX20B-5D WITH TWO SIM CARD SLOTS
Rys. 2. LX20B-5D Transmitter with LX-ZAS adapter

Table of Contents

Related product manuals