EasyManua.ls Logo

EKOM DK50 - Page 19

EKOM DK50
112 pages
Print Icon
To Next Page IconTo Next Page
To Next Page IconTo Next Page
To Previous Page IconTo Previous Page
To Previous Page IconTo Previous Page
Loading...
DK50
06/2020 - 19 - NP-DK50 simple s DE-4_06-2020
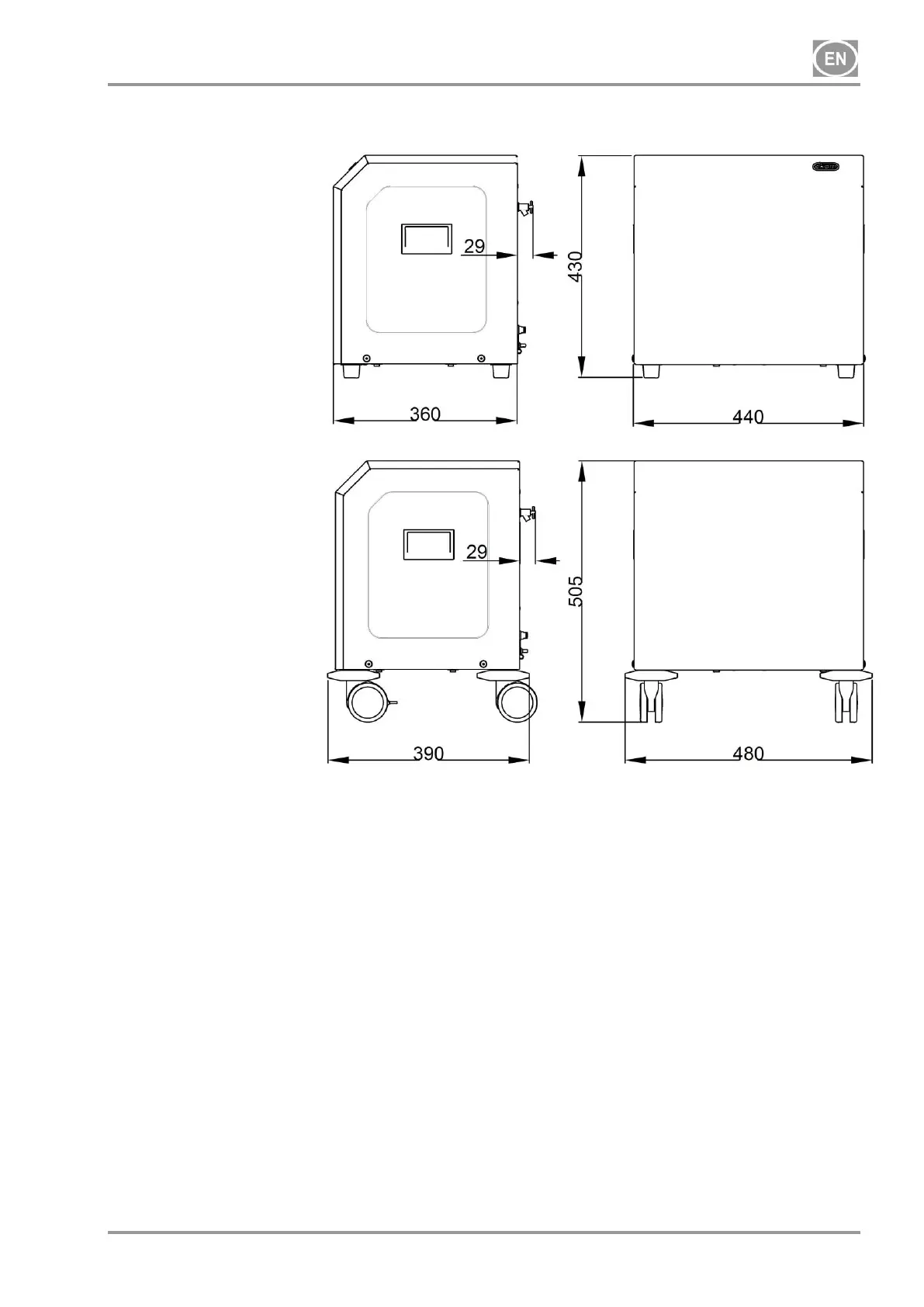
12.2. Installation schematic
Compressor with feet
Compressor with casters

Table of Contents

Other manuals for EKOM DK50

Related product manuals