EasyManua.ls Logo

Electrolux W475H - To Copy a Program from a Memory Card to the Machines Program Control Unit

Electrolux W475H
76 pages
Print Icon
To Next Page IconTo Next Page
To Next Page IconTo Next Page
To Previous Page IconTo Previous Page
To Previous Page IconTo Previous Page
Loading...
60
Procedure for use
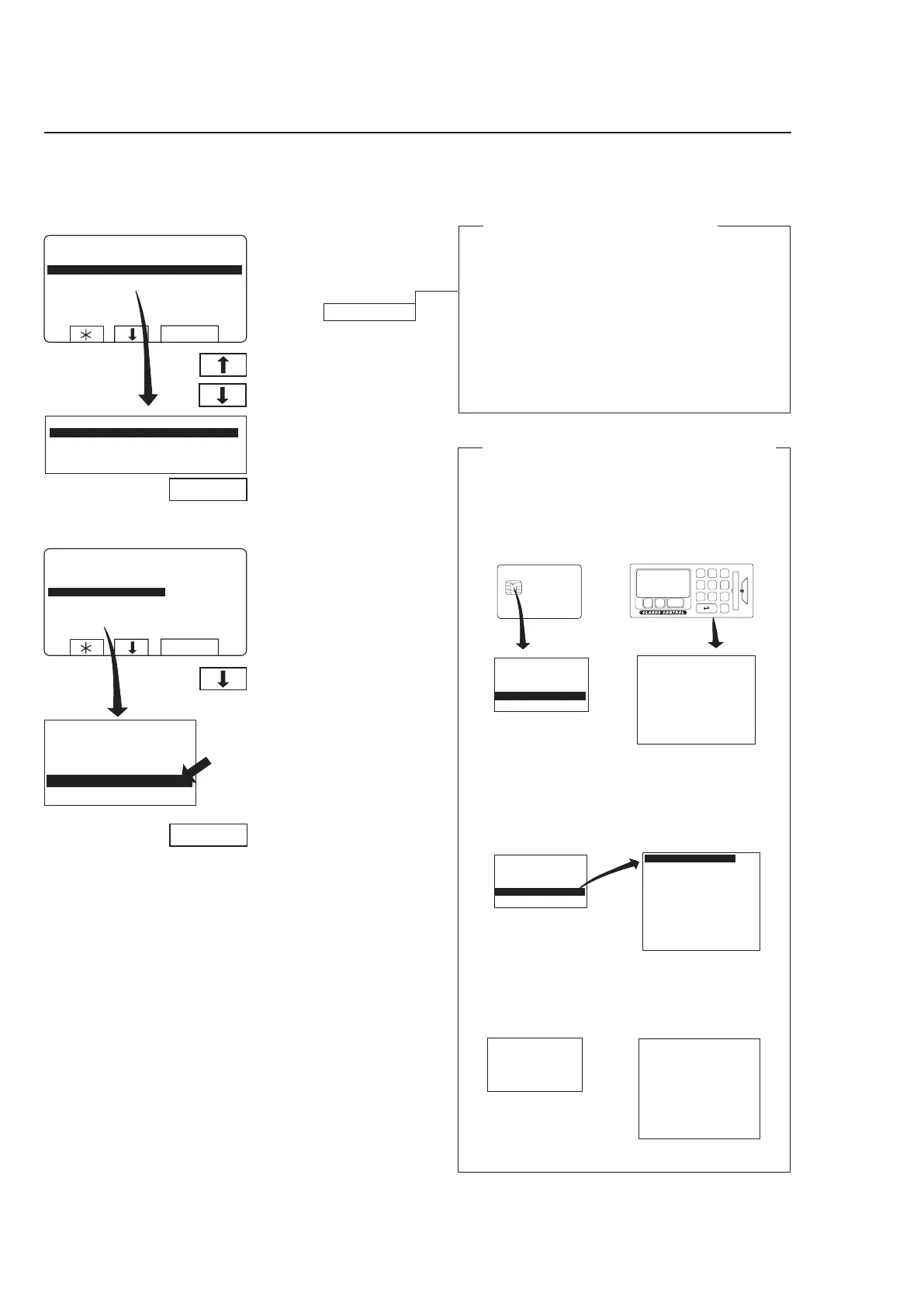
To copy a program from a memory card to the machine’s program control unit
3610 A
3609 A
If necessary, use b to...
... highlight the wash pro-
gram required.
Press SELECT.
What is a restricted-use program?
A wash program which has been created on a
PC can be made a ”restricted-use” program. This
means that:
The program cannot be deleted or copied to the
program memory of a washer extractor.
You cannot modify the program or examine its
structure.
To run the program you must have access to the
memory card, and insert it into the card reader
when the program is to be started.
What happens when a program is copied?
Both the memory card and the program control
unit have memory chips capable of storing wash
programs. The chip on the card can hold about 10
to 15 programs of normal size, while the chip in
the program control unit has a capacity of several
hundred programs.
3615
The program remains on the memory card, but an-
other copy of it has now been stored in the program
control unit.
When a program is copied from a memory card to
the machine’s program control unit, it is copied,
not moved (not deleted from the card). A copy is
transferred from the chip on the memory card to the
storage chip of the machine program control unit.
3614
3616
Note that restricted-use
programs on a memory card
cannot be copied.
To access this menu, follow
the instructions in section
”To select the ”Memory card”
function”.
Highlight ”COPY PRO
-
GRAM FROM MEMORY
CARD TO CLS” (press
b
or
c if necessary).
Press SELECT.

 
 
 
 
 
 
 
 
 








 
 
 
 
 
 
 
 
 
























 












 
 
 
 
 
 
 
 
 








Other manuals for Electrolux W475H

Related product manuals