EasyManua.ls Logo

EM TEST CWS 500N2 - 6 Test Equipment CWS 500 N2

EM TEST CWS 500N2
38 pages
Print Icon
To Next Page IconTo Next Page
To Next Page IconTo Next Page
To Previous Page IconTo Previous Page
To Previous Page IconTo Previous Page
Loading...
EM Test CWS500 N2
User manual V 3.00 25 / 38
6.
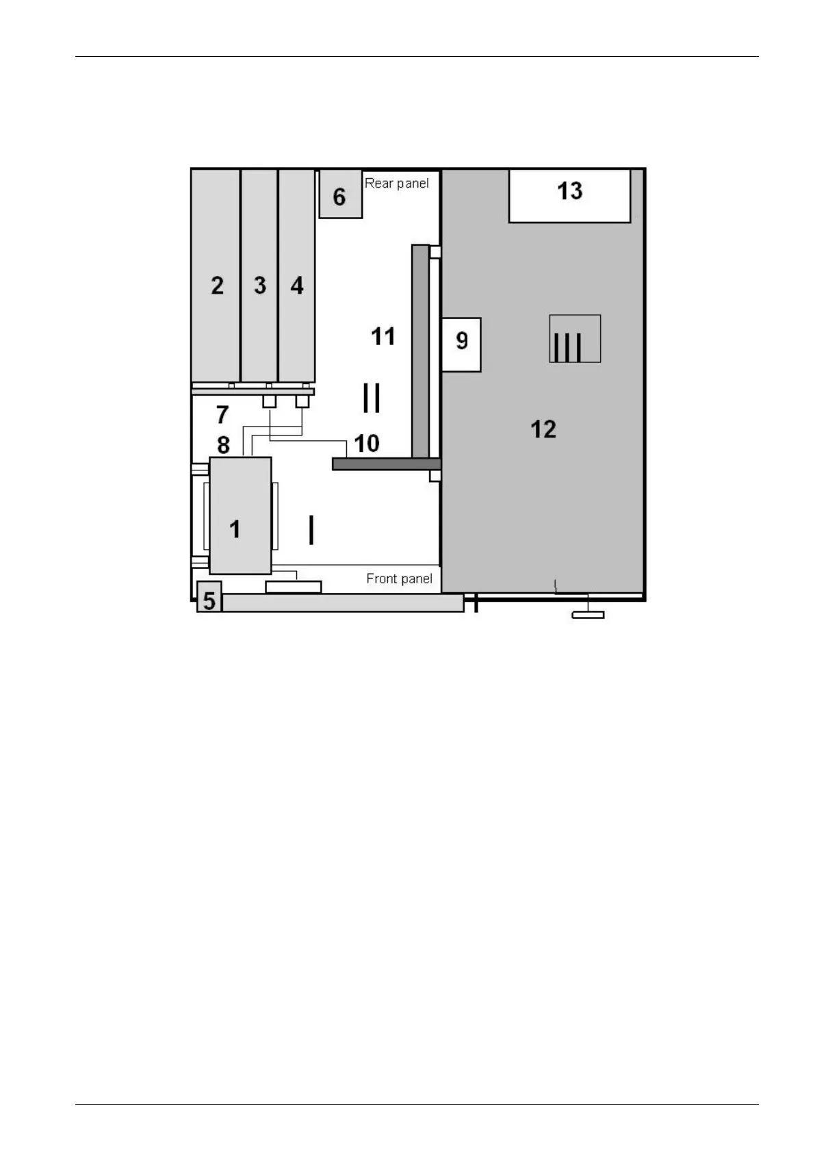
Test Equipment CWS 500N2
The CWS 500N2 continuous wave simulator is divided into three main parts. The control unit is completely
separated and uncoupled from the RF power section.
Fig 6.1
I Control unit
1 Transformer
2 Power Supply
3 Interface Board
4 Processor Board
5 Keyboard / LC Display
6 Power Supply Filter
7 Connection Board
8 Flat Band Cables to Front Panel
9 Calibration Measuring Device or
PM Powermeter
II Generator Unit
10 Signal Generator Connection Board
11 Signal Generator
III RF Power Unit
12 Amplifier
13 Bi- directional coupler

Table of Contents

Related product manuals