EasyManua.ls Logo

Emerson SP2403 - Size 3 External EMC Filter

Emerson SP2403
220 pages
Print Icon
To Next Page IconTo Next Page
To Next Page IconTo Next Page
To Previous Page IconTo Previous Page
To Previous Page IconTo Previous Page
Loading...
Safety
Information
Introduction
Product
information
System
design
Mechanical
installation
Electrical
installation
Getting
started
Optimisation Parameters
Technical
data
Component
sizing
Diagnostics
58 Unidrive SP Regen Installation Guide
www.controltechniques.com Issue Number: 2
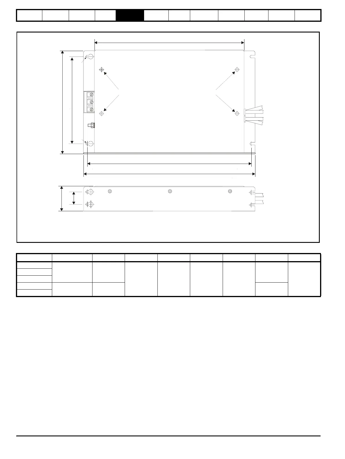
Figure 5-23 Size 3 external EMC filter
Z
ED
V: Ground stud: M6
X: M6 threaded holes for footprint mounting of the drive
Y: Footprint mounting holes 6.5mm (0.256in)
Z: Bookcase mounting slots 6.5mm (0.256in) wide
Cable size
:
16mm
6AWG
2
V
Y
Y
CW
A
B
H
Z
Z
X
X
CT part no. Manufacturer A B C D E H W
4200-6305
Schaffner
361 mm
(14.213 in)
396 mm
(15.591 in)
210 mm
(8.268 in)
60 mm
(2.362 in)
30 mm
(1.181 in)
414 mm
(16.299 in)
250 mm
(9.843 in)
4200-6307
4200-6309
4200-6306
Epcos
365 mm
(14.370 in)
425 mm
(16.732 in)
4200-6308

Table of Contents

Related product manuals