EasyManua.ls Logo

Endress+Hauser CM442R - Mounting

Endress+Hauser CM442R
52 pages
Print Icon
To Next Page IconTo Next Page
To Next Page IconTo Next Page
To Previous Page IconTo Previous Page
To Previous Page IconTo Previous Page
Loading...
Liquiline CM442R/CM444R/CM448R
Endress+Hauser 33
Mounting
Mounting on DIN rail as per
IEC 60715
NOTICE
Incorrect mounting location in the cabinet, spacing regulations not observed
Possible malfunctions as a result of heat development and interference from neighboring devices
Do not position the device directly above sources of heat. Make sure to observe the temperature
specification.
The components are designed for convection-based cooling. Avoid the buildup of heat and
ensure openings are not covered over, e.g. by cables.
Make sure to keep the specified distance to other devices.
Physically separate the device from frequency converters and high-voltage devices.
Recommended installation direction: horizontal. The specified ambient conditions, and
particularly the ambient temperatures, only apply for horizontal installation.
Vertical orientation is also possible. However, this requires additional fixing clips at the place of
installation to hold the device in position on the DIN rail.
Recommended installation of the power unit for CM444R and CM448R: to the left of the device.
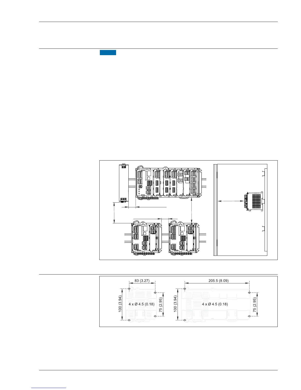
The following minimum spacing specifications must be observed:
Distance at the side to other devices including power units and distance to control cabinet wall:
at least 20 mm (0.79 inch)
Distance above and below the device and depth distance (to control cabinet door or other devices
installed there):
at least 50 mm (1.97 inch)
min. 50 (1.97)
min. 20 (0.79)
min. 50 (1.97)
min. 20 (0.79)
min. 50 (1.97)
A0025369
 23 Minimum spacing in mm (inch)
Wall mounting
A0025370
 24 Drilling pattern for wall mounting in mm (inch)

Related product manuals