EasyManua.ls Logo

Esco Class II - Chapter 7 - Troubleshooting; 7.1. Electrical and Mechanical Troubleshooting

Esco Class II
73 pages
Print Icon
To Next Page IconTo Next Page
To Next Page IconTo Next Page
To Previous Page IconTo Previous Page
To Previous Page IconTo Previous Page
Loading...
34
Chapter 7 - Troubleshooting
7.1. Electrical and Mechanical Troubleshooting
This guide addresses the most common service issues. Unless there is a note to limit the applicability of the
points raised, the point applies to all AC2 series. For more troubleshooting or service information contact your
local Esco Distributor.
Hardware:
DVM (Digital Voltage Meter).
Note: An analog meter can be used for troubleshooting, but cannot be used for motor voltage measurement.
Phillips screwdriver.
Insulated jumper cables.
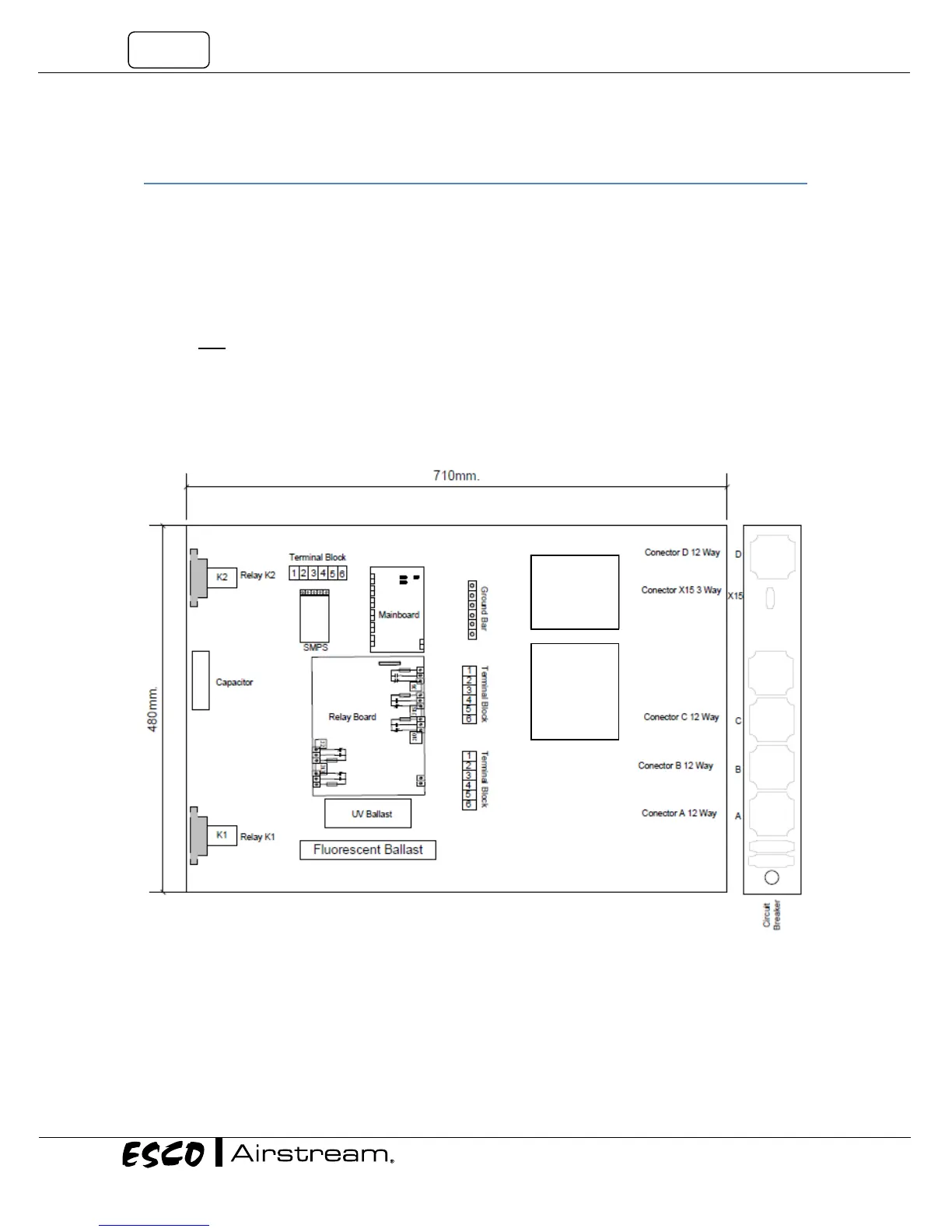
The Electrical Panel and Component Layout:
Open the front panel, the electrical panel is located on the back of the panel. A red cover is used to cover the
electrical panel located on the back of the front panel of AC2-xNy model. The component layout is as followed
(please note that the layout is the same regardless of the power rating).
Figure 7.1. Layout Electrical Box in AC2-xEy, AC2-xSy, AC2-xGy and AC2-xDy
Speed
Control
For D and
G only
Speed
Control
N1

Related product manuals