EasyManua.ls Logo

Extraflame HP 22 - Recommended Distances for the Boiler Compartment

Extraflame HP 22
32 pages
Print Icon
To Next Page IconTo Next Page
To Next Page IconTo Next Page
To Previous Page IconTo Previous Page
To Previous Page IconTo Previous Page
Loading...
A
F
A
B
D
E
C
ENGLISH
Do not leave the packaging elements within reach of children or unassisted disabled persons.
The hearth door must always be closed during normal functioning of the product.
Avoid direct contact with parts of the appliance that tend to heat up during functioning.
Check for the presence of any obstructions before switching the appliance on following a prolonged standstill period.
The generator has been designed to function in any climatic condition. In particularly adverse conditions (strong wind, freezing)
safety systems may intervene to switch the generator o.
If this occurs, contact the technical after-sales service and always disable the safety system.
If the ue should catch re, be equipped with suitable systems for suocating the ames or request help from the re service.
If the generator should block, indicated by a signal on the display and that is not relative to lack of routine maintenance, contact
the technical after-sales centre.
THESE BOILERS MUST BE USED TO HEAT WATER TO A TEMPERATURE THAT DOES NOT EXCEED BOILING POINT
IN THE CONDITIONS OF INSTALLATION.
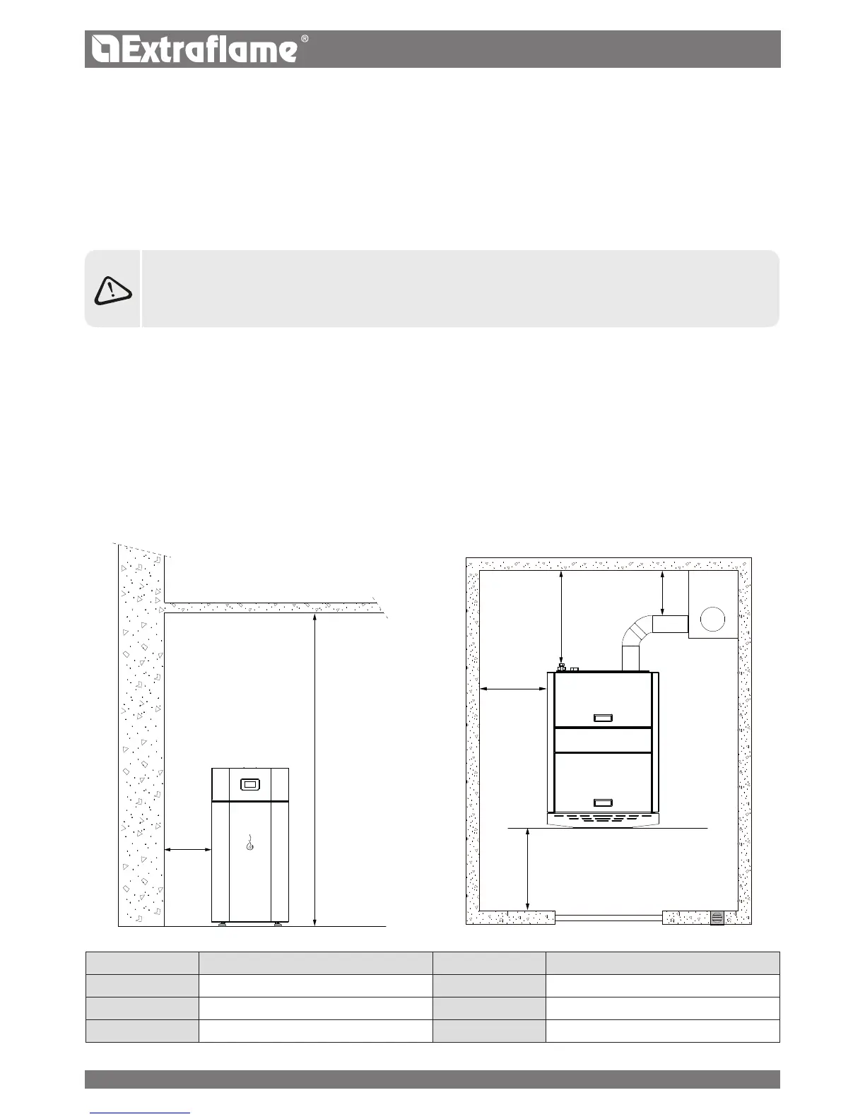
RECOMMENDED DISTANCES FOR THE BOILER COMPARTMENT
Below are a few images relative to the minimum distances required in the boiler room.
The company recommends the following measurements to be complied with:
REFERENCES NONINFLAMMABLE OBJECTS REFERENCES NONINFLAMMABLE OBJECTS
A 500 mm D 300 mm
B 1,000 mm E > 100 cm
2
C 1,000mm F 230cm
7

Related product manuals