EasyManua.ls Logo

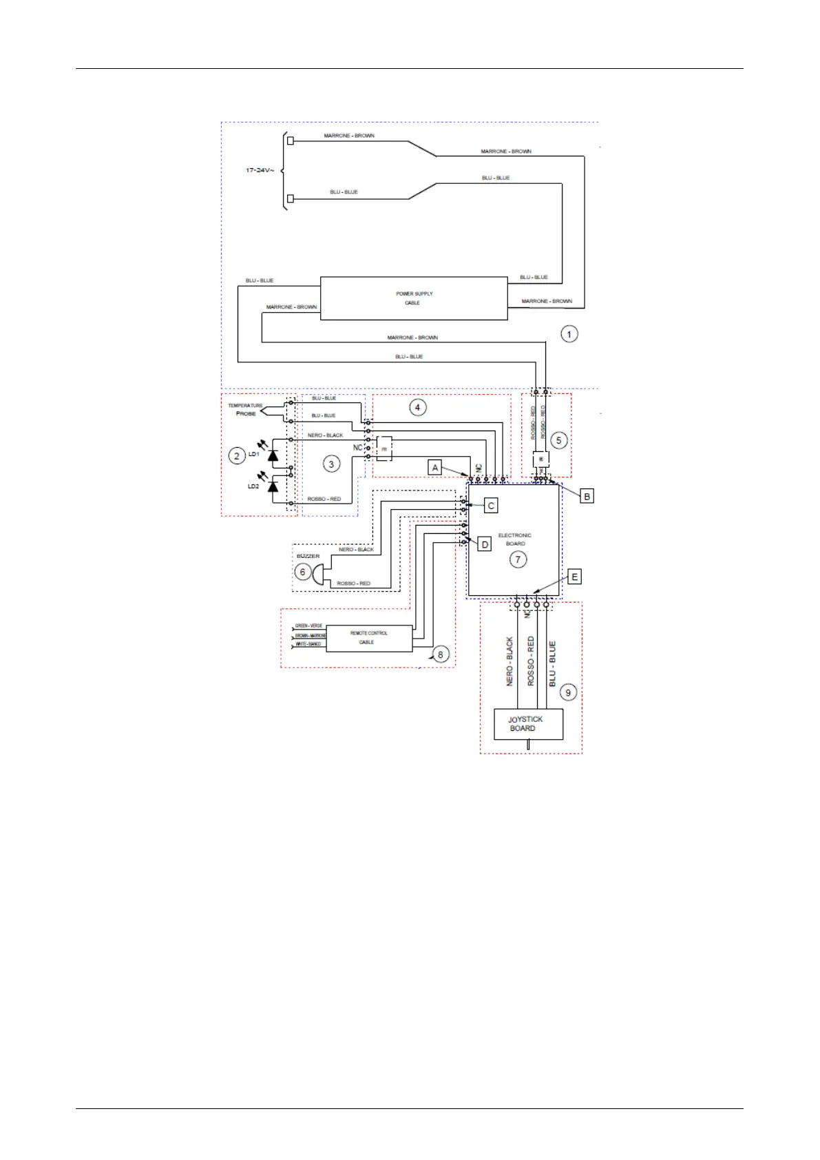
Faro ALYA - ELECTRICAL SCHEME - DENTAL LIGHT WITHOUT TRANSFORMER; JOYSTICK SCHEME

Faro ALYA
32 pages
Print Icon
To Next Page IconTo Next Page
To Next Page IconTo Next Page
To Previous Page IconTo Previous Page
To Previous Page IconTo Previous Page
Loading...
ALYA INSTALLATION AND USER’S MANUAL - EN
Edition 2.0 Sept 2018 Pag. 29 di 32
10.5 Electrical Scheme - Dental Light Without Transformer Joystick

Table of Contents

Other manuals for Faro ALYA