EasyManua.ls Logo

Fermax 2409 - Mds 50 C

Fermax 2409
115 pages
Print Icon
To Next Page IconTo Next Page
To Next Page IconTo Next Page
To Previous Page IconTo Previous Page
To Previous Page IconTo Previous Page
Loading...
Pag. 41
Technical Book
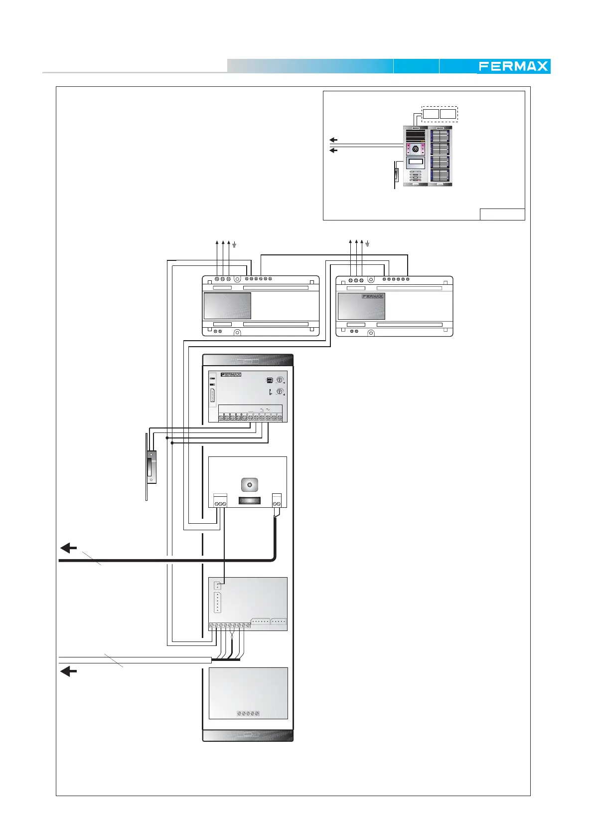
MDS-ADS
MDS-ADS
MDS 50C
Ref.2958
-+CT VM
90 : 260 Vac
90 : 260 Vac
MDS 50C
SEC. 18VDCPRIM 220VAC
F
E
-+-+-+
VIDEO POWER SUPPLY
REF. 88301
ALIMENTADOR VIDEO
REF. 88301
-+-+
E F
12 VDC220 VPRIM
POWER SUPPLY
ALIMENTADOR DIGITAL
REF.88401
REF. 88401
-+
2
D1
-
6 ACBD
105CIO1A
3
TC
6
CT
CP
1
2
S
D2
-+ + -
D1
2 6 B
D2
-
D
BC A
Ref.5918
COAX RG-59
CN1
1
321
U
F
Cp2
32 6
Ab Ab Tc
Cp1
..........
..........
....
....
-+
MDS 50C
123
456
789
A0
HIGH RESOLUTION
CCD CAMERA
PAN &TILT
MULTIPLEXED DIGITAL SYSTEM
REF.88301 REF.88401
MDS DIRECT KEYPAD
CONNECT IT TO
INTERNAL BLOCKS OR
MDS CITY/DIRECT
GUARD UNIT
MDS DIRECT VIDEO PANEL
ACCESS 1
GENERAL ENTRANCE
CAMERA
ACCESS 1

Table of Contents

Related product manuals