EasyManua.ls Logo

Fermax 2409 - Mds 150 U

Fermax 2409
115 pages
Print Icon
To Next Page IconTo Next Page
To Next Page IconTo Next Page
To Previous Page IconTo Previous Page
To Previous Page IconTo Previous Page
Loading...
Pag. 64
Technical Book
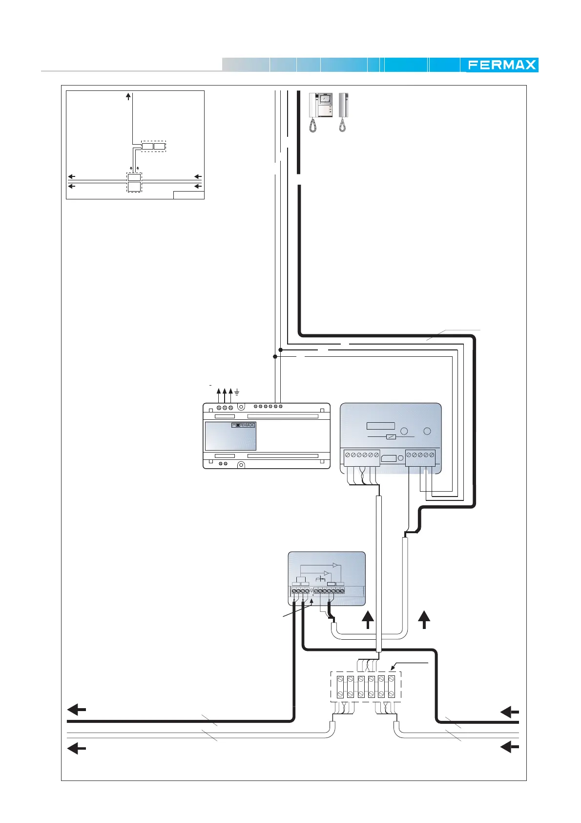
MDS-ADS
MDS-ADS
MDS 150U
MDS 150U
1
D
2
D
2
6
-
+
REF.2448
DISTRIBUIDOR VIDEO 2 SALIDAS
2 OUTPUTS VIDEO DISTRIBUTOR
M
R1
+18
75
MV
6
3
+
4
2
VMV
1 5
V M
COAX RG-59
Ref.5918
COAX RG-59
Ref.5918
PC
DECODER ADS
ADS DECODER
CN3
BLOCK #
REF. 2409
+
D2D1
-
MDS
62
AUDIOPGM
DL1
Ct S
+
ADS
L
-
PIN_PADSTACKPIN_PADSTACK
+
L
COAX
COAX RG59
L
+
-
-
1
2
HIGH RESOLUTION
FLAT MONITOR
E
F
SEC. 18VDCPRIM 220VAC
ALIMENTADOR VIDEO
REF.88301
VIDEO POWER SUPPLY
85 : 270 Vac
REF.88301
-+ -+ + -
MDS 150U
REF.88301 REF.2409
REF.2448
FROM THE DECODER BUS OF
THE GENERAL ENTRANCE OR
FROM THE PREVIOUS BLOCK
TO THE NEXT BLOCK IF
REQUIRED
STANDARD SCREW
TERMINAL
TO THE FLOORS
CUT RESISTOR
terminal
standard
screw

Table of Contents

Related product manuals