EasyManua.ls Logo

Fermax 2409 - Mds 173 C

Fermax 2409
115 pages
Print Icon
To Next Page IconTo Next Page
To Next Page IconTo Next Page
To Previous Page IconTo Previous Page
To Previous Page IconTo Previous Page
Loading...
Pag. 80
Technical Book
MDS-ADS
MDS-ADS
MDS 173C
Ref.5918
REF.2339
2
A
GG LTH
-+
BA
+ -
HTL 6G2B
A6G
+-
6B2 G
2
-+
6G
-
BA
+
Ref.5918
E F
PRIM.
REF.88401
--++
12V
-+ -+ -+
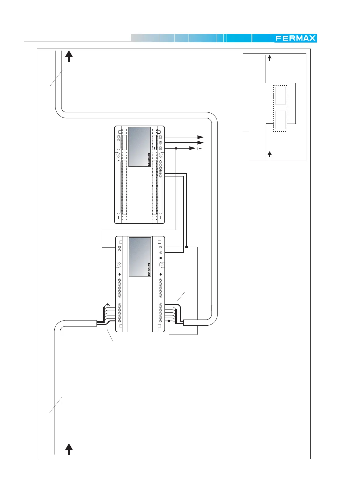
POWER SUPPLY
ALIMENTADOR DIGITAL
REF.88401
90 : 260 Vac
REPETIDOR MDS
MDS REPEATER
REF.2339
REF. 88401 REF. 2339
MDS 173C
MDS 173C
FROM THE PREVIOUS
DIAGRAM
TO THE NEXT
DIAGRAM
MIDDLE ZONE
(with extra power supply andFXL
repeater acting as signal
regenator)
STANDARD SCREW
TERMINAL
SHIELD
SHIELD

Table of Contents

Related product manuals