EasyManua.ls Logo

fiorini SET PLUS 2.0 - 25 - Page 14

fiorini SET PLUS 2.0 - 25
42 pages
Print Icon
To Next Page IconTo Next Page
To Next Page IconTo Next Page
To Previous Page IconTo Previous Page
To Previous Page IconTo Previous Page
Loading...
14
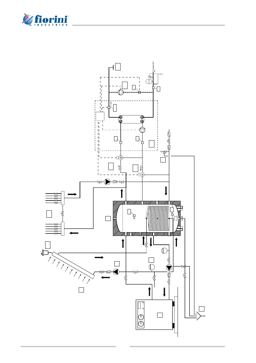
SET PLUS 2.0 - SET 2.0
Modelli SET 2.0 - 60/70/80/100/120/200
7
1
8
3
2
6
5
9
4
11
14
10
12
13
VFS
S1
S4
S6
S2
S3
S5
Limite fornitura gruppo SET
SET unit delivery limit
SCARICO
OUTLET
FILTRO
FILTER
ACQUEDOTTO
WATER MAINS
Models SET 2.0 - 60/70/80/100/120/200

Table of Contents