EasyManua.ls Logo

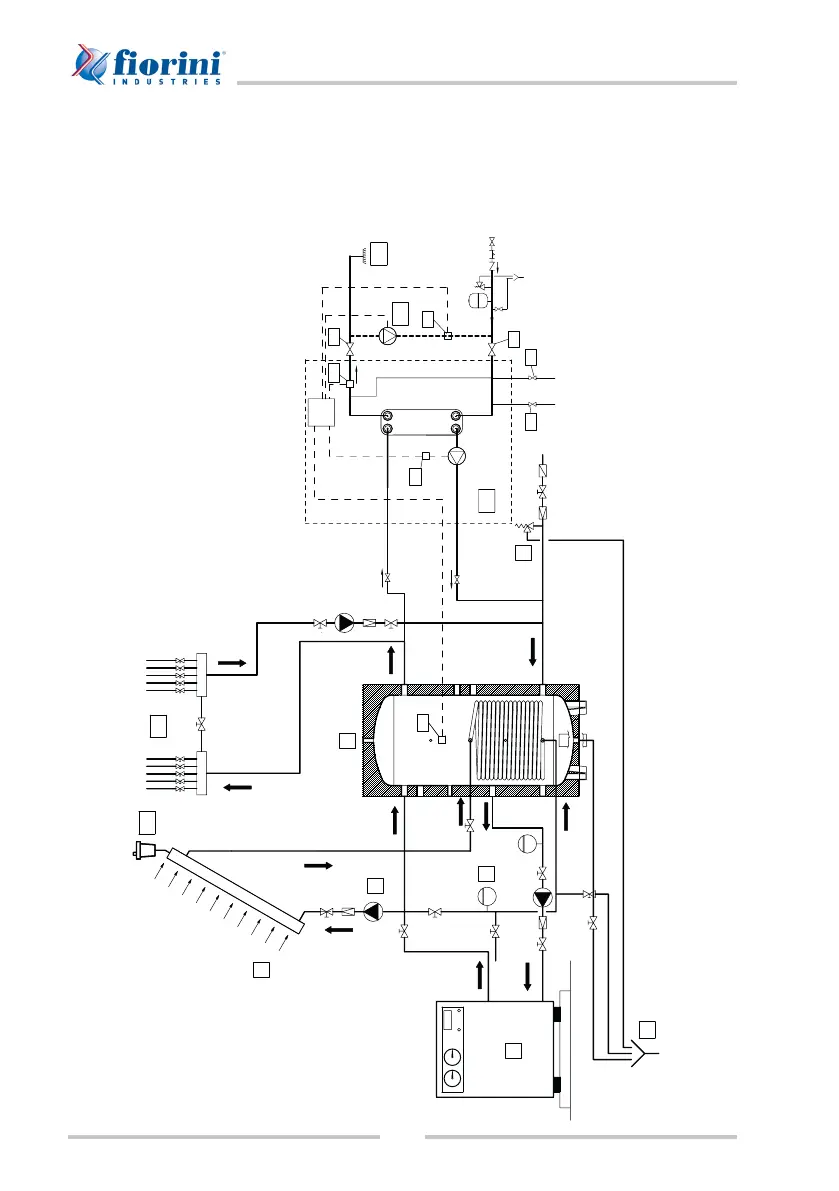
fiorini SET PLUS 2.0 - 25 - Schema Dinstallazione in Abbinamento a Termoaccumulo; Installation Diagram When Coupled to a Hot Water Storage Tank

fiorini SET PLUS 2.0 - 25
42 pages
Print Icon
To Next Page IconTo Next Page
To Next Page IconTo Next Page
To Previous Page IconTo Previous Page
To Previous Page IconTo Previous Page
Loading...
12
SET PLUS 2.0 - SET 2.0
Schema d’installazione in abbina-
mento a termoaccumulo
Modelli SET PLUS 2.0 - 25/35/40
7
1
8
3
2
6
5
9
4
VFS
14
13
12
11
10
S1
S2
14
13
V1
Limite fornitura gruppo SET
SET unit delivery limit
SCARICO
OUTLET
FILTRO
FILTER
ACQUEDOTTO
WATER MAINS
Installation diagram when coupled to
a hot water storage tank
Models SET PLUS 2.0 - 25/35/40

Table of Contents