EasyManua.ls Logo

Fischer Panda 10000x - Page 188

Fischer Panda 10000x
190 pages
Print Icon
To Next Page IconTo Next Page
To Next Page IconTo Next Page
To Previous Page IconTo Previous Page
To Previous Page IconTo Previous Page
Loading...
Panda xControl
Seite/Page 188 - Kaptitel/Chapter 11: Panda xControl 10.6.16
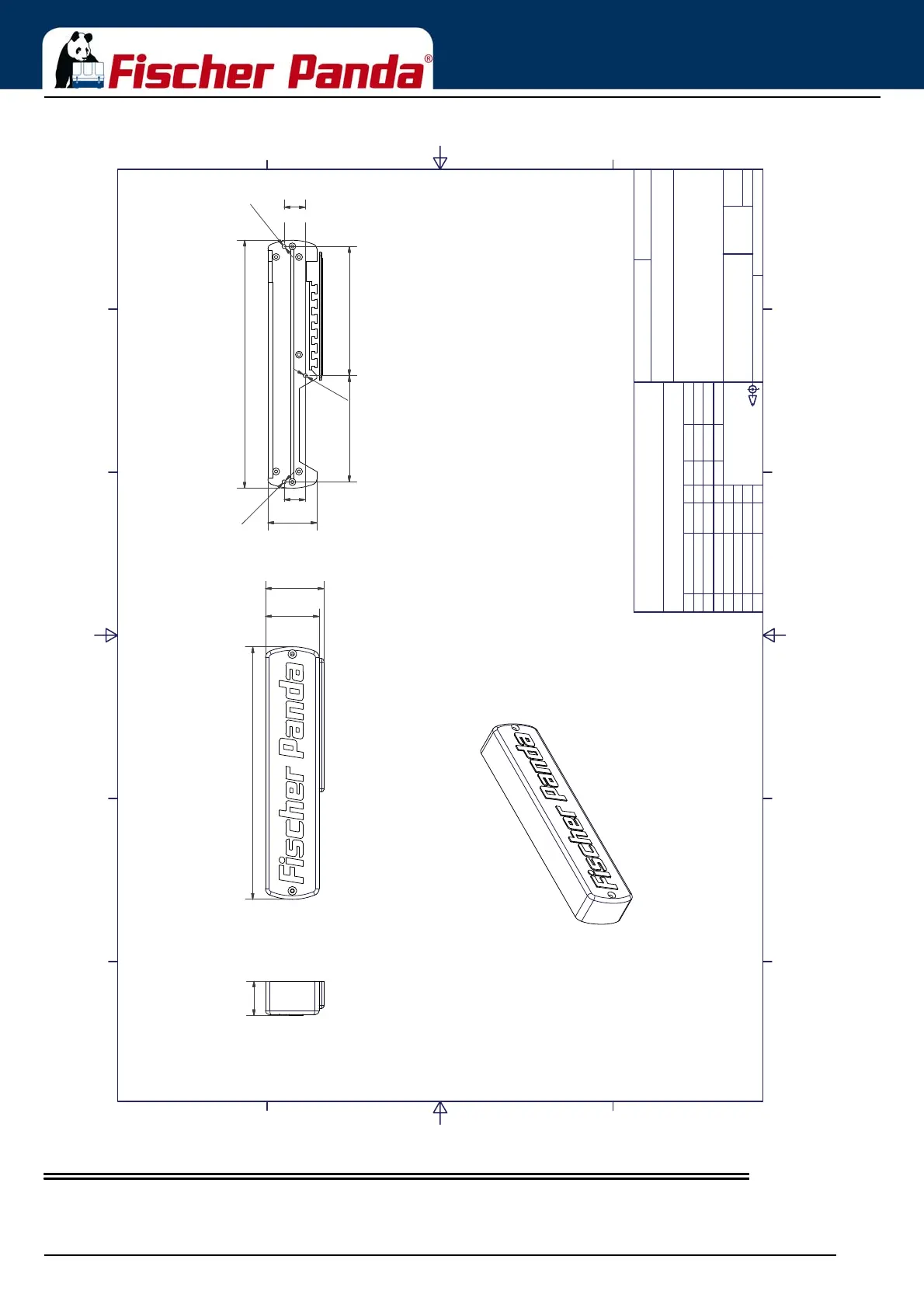
Fig. 11.2.3-3: CB-G
1
1
2
2
3
3
4
4
5
5
6
6
A A
B B
C C
D D
Zust.
Änderungen
Datum
Name
Datum Name
Bearbeiter
letzte Freigabe
erste Freigabe:
Maßstab:
Material:
Art.-Nr.:
Gewicht:
Ersatz für Ersetzt durch
Blatt
13.02.2015
jschaefers
1 / 1
A3
Fischer Panda GmbH Otto-Hahn-Str. 40 D-33104 Paderborn Tel.: 05254/9202-0
Fax (05254) 9202-550 info@fischerpanda.de www.fischerpanda.de
Allgemeintoleranzen nach
DIN ISO 2768-mK
Schutzvermerk nach
DIN 34 beachten !
Zeichnungs Nr.
FP1-038543
Übergabebox kplt Befestigungspunkte
3D-Nr: FP1-036154
Vers.:
Version
PrL:-
Fischer Panda
_
1 : 2
29,6
216,9
4
6
,
1
5
0
,
1
1
8
,
1
91,1 110,9
1
8
,
1
4
2
,
1
212,9
Ansicht ohne Abdeckung
P
3
,
5
P
3
,
5
P
3
,
5

Table of Contents

Related product manuals