EasyManua.ls Logo

Fischer Panda 10000x - Connection of the Sensor (Ziehl Abegg KTY)

Fischer Panda 10000x
190 pages
Print Icon
To Next Page IconTo Next Page
To Next Page IconTo Next Page
To Previous Page IconTo Previous Page
To Previous Page IconTo Previous Page
Loading...
Installation Instructions
10.6.16 Kapitel/Chapter 5: Installation Instructions - Seite/Page 91
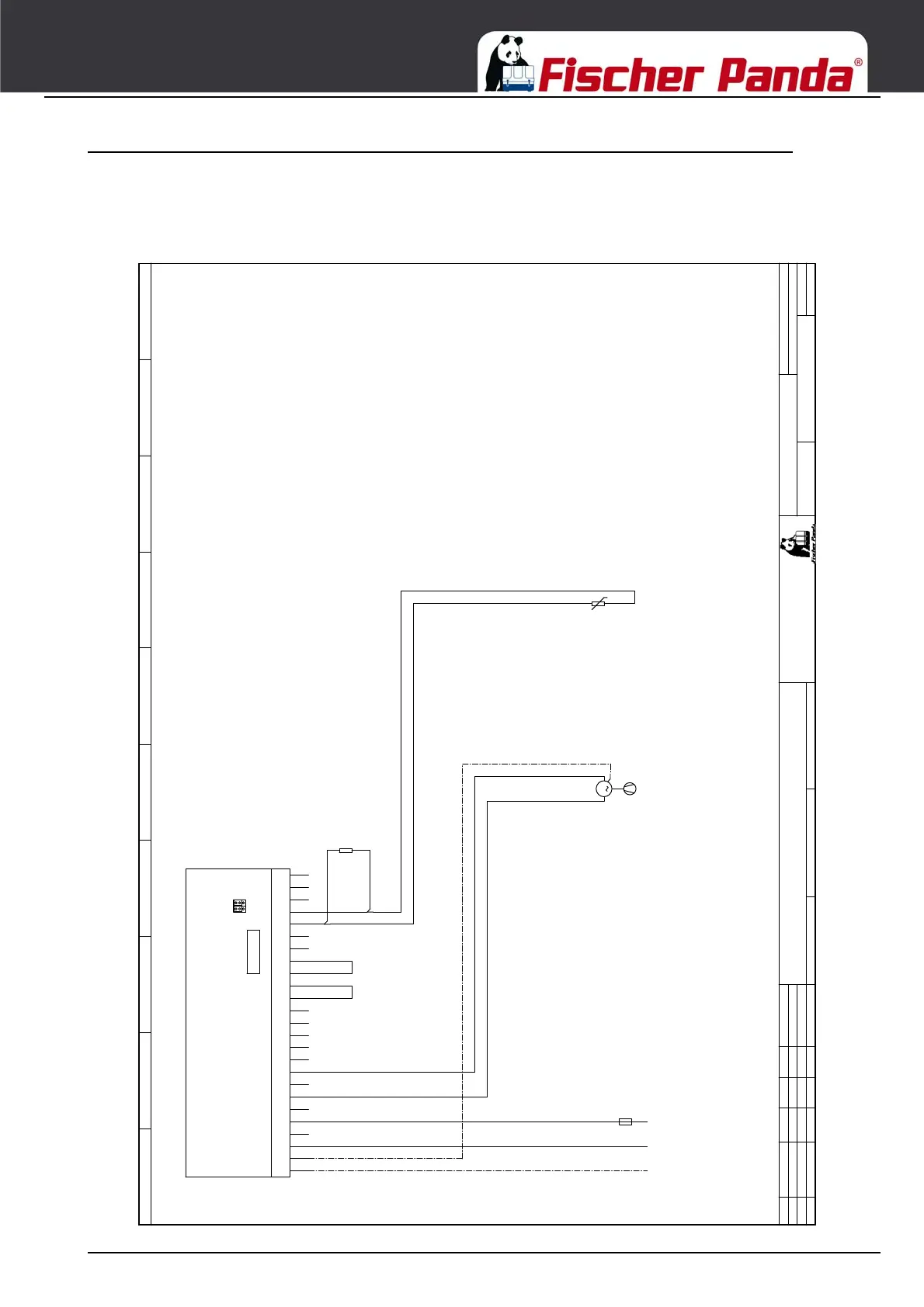
5.23.2 Connection of the sensor (Ziehl Abegg KTY)
The input TB and D1 are bridget.
The sensor is connected to E1/GND. A resistor 4,2kOhm must be connected parallel to the sensor.
Fig. 5.23.2-1: Connection plan
012
3
4 5 67 89
Datum
Bearb.
Gepr.
Norm
Urspr. Ers.dErs.f
Blatt 1
Bl.
=
+
von 1
Zust. Änderung Datum Name
Zeichnungsnummer:
D-33104 Paderborn
Otto-Hahn-Str. 32-34
www.fischerpanda.de
+49(0)5254/9202-0
Projektnummer:
Fischer Panda
Generatoren
Fischer Panda GmbH
Bröckling
070367_00_00---
---070367_00_00 ---
Schönberger
26.08.2010
connectionplan - fan control ZA PXET6Q / PXET6Q
M
fan
PE
-M
4,2kOhm
2
1
-R
T
temperature
sensor
1
2
-R
line
230V 50Hz
E1
110
on
Ziehl Abegg PXET6Q
PE
PE
N
N
L1
L1
U1
U1
U2
U2
11
12
14
TB
TB
D1
D1
A1
GND
E1
GND
24V
GND
-A
.
-F

Table of Contents

Related product manuals