EasyManua.ls Logo

Flowserve VTP - Major Part Designs

Flowserve VTP
76 pages
Print Icon
To Next Page IconTo Next Page
To Next Page IconTo Next Page
To Previous Page IconTo Previous Page
To Previous Page IconTo Previous Page
Loading...
Page 17 of
7
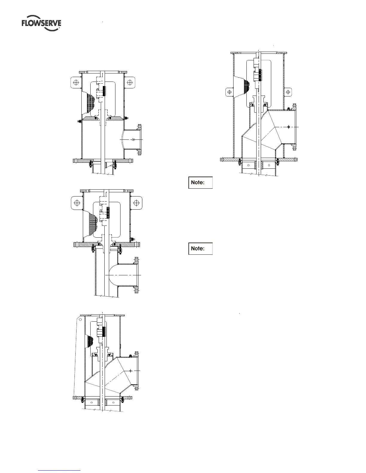
d) LF type
f
(Typical
l
A
lso av
a
e) UF type
f) HFL typ
e
VERTIC
7
6
f
abricated di
s
y with a circ
u
a
ilable with s
u
fabricated di
s
e
fabricated
d
A
L TURBIN
E
s
charge head
u
lar base plat
e
u
ction barrel
m
s
charge hea
d
d
ischarge he
a
E
PUMPS
(
V
T
e
-
A
NSI type.
m
ounting)
d
a
d
T
PS
)
CENTR
I
g) H
F
3.2.2.
1
and c
o
config
u
pleas
e
or ord
e
D
3.3
numb
e
3.3.1
A
vari
e
motor
s
manu
a
categ
o
a) H
o
throug
conne
c
of the
d
b) S
o
and pr
o
type d
r
conne
c
3.3.2
(See
a
The di
s
asse
m
in mo
s
IFUGAL PU
M
F
H type fabri
c
The disc
h
1
(a) thru (g)
a
o
upling arran
g
u
ration of the
e
refer to the
d
e
r specific se
c
D
esign of
Please r
e
e
r equivalent
s
Drivers
e
ty of drivers
m
s
are most co
m
a
l, all types of
o
ries.
o
llow shaft dri
v
h a tube in th
e
c
ted to the dr
i
d
river.
o
lid shaft driv
e
ojects below
t
r
iver requires
c
ting to the p
u
Discharge
a
lso section 3.
s
charge hea
d
m
bly as well a
s
s
t cases.
M
PS ENGLI
S
c
ated discha
r
h
arge heads
s
a
re for illustr
a
g
ements var
y
pump that h
a
d
rawings sup
c
tionals from
Major Par
t
e
fer to appen
d
s
m
ay be used,
m
mon. For t
h
drivers can
b
v
ers: where t
h
e
center of th
e
i
ver by a clut
c
e
rs: where th
e
t
he driver-mo
an adjustabl
e
u
mp.
Head Asse
m
.
2.2.1)
d
supports th
e
s
supplying a
S
H 7156922
4
flows
e
r
ge head
s
hown in sec
t
a
tion only. T
h
y
. For the act
a
s been purc
h
plied with th
e
Flowserve.
t
s
d
ix for Europ
u
however, ele
h
e purposes
o
b
e grouped in
t
h
e head shaf
t
e
rotor and is
c
h assembly
a
e
rotor shaft i
s
unting base.
e
coupling for
m
bly
e
driver and b
o
discharge co
n
4
– 02-15
e
rve.com
t
ion
h
e shaft
ual
hased,
e
pump
u
mp part
ctric
o
f this
t
o two
t
extends
a
t the top
s
solid
This
o
wl
n
nection

Related product manuals