EasyManua.ls Logo

Flowserve VTP - Piping

Flowserve VTP
76 pages
Print Icon
To Next Page IconTo Next Page
To Next Page IconTo Next Page
To Previous Page IconTo Previous Page
To Previous Page IconTo Previous Page
Loading...
Page 31 of
7
screws sho
u
in its final ali
See section
5
solid shaft.
B
e
coupling hal
v
can rotate fr
e
half couplin
g
circular key
w
An
g
4.6.4
before the c
o
supply to th
e
final alignm
e
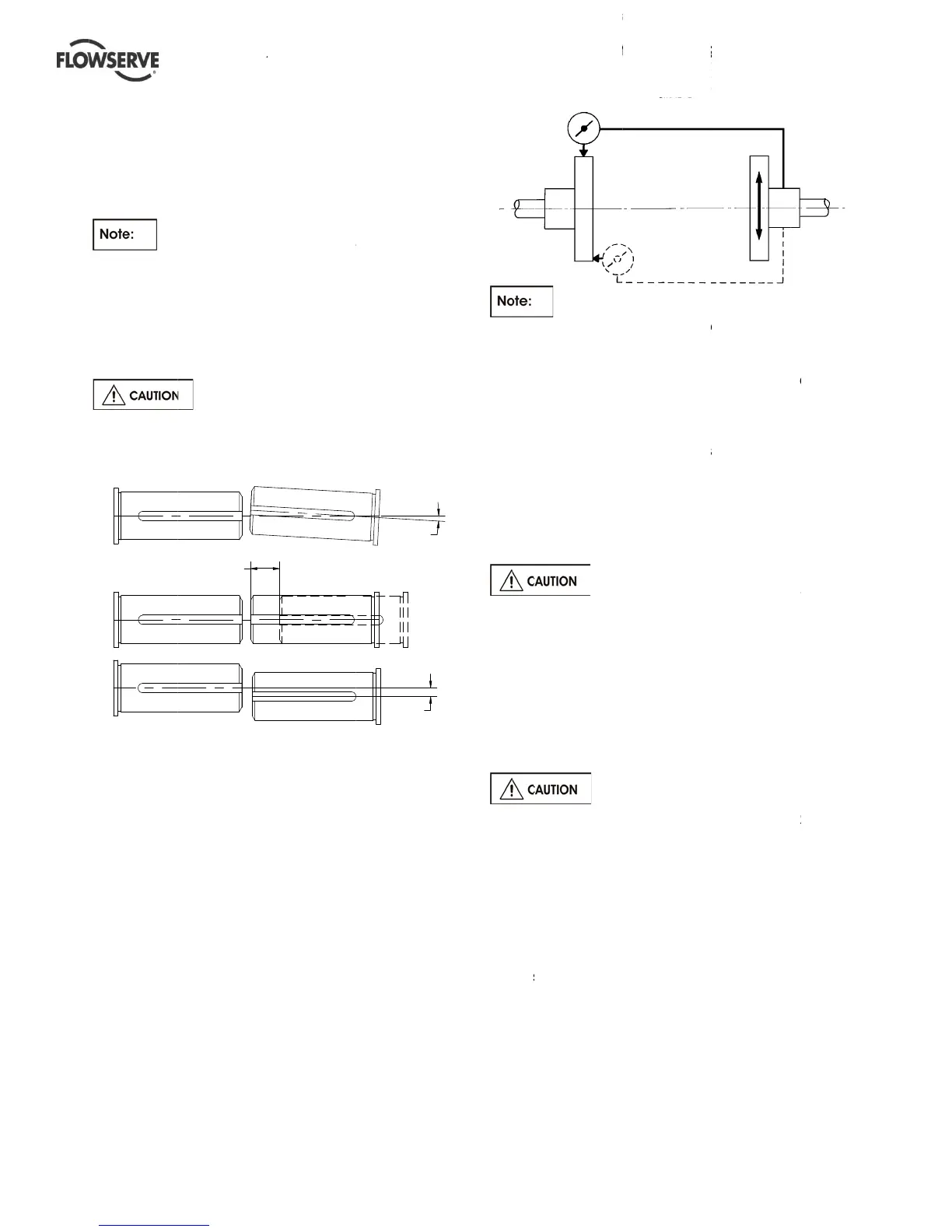
a) Angula
r
intersec
t
shafts.
b) Axial O
f
of one o
thermal
c) Parallel
The ma
x
on the s
i
instructi
o
For coupling
as shown in
angular alig
n
a)
b)
c)
VERTIC
7
6
u
ld be used t
o
gned positio
n
5
.3.2.1 for fin
a
e
fore bumpin
g
v
es are not t
o
e
ely without
r
g
must be in
p
w
ill not come
g
ular and pa
r
Check th
e
o
upling is full
y
e
driver to be
e
nt is comple
t
r
Offset: The
t
halfway bet
w
f
fset: Anothe
r
r both of the
s
e
xpansion.
Offset: The
m
x
imum allow
a
i
ze of couplin
o
n manual of
s with narro
w
the detail to
c
n
ment.
Axial offset
A
L TURBIN
E
o
locate the
m
n
.
a
l coupling al
i
g
motor mak
e
o
uching and t
r
otating the p
u
p
roper positio
n
out.
r
allel misalig
e
direction of
p
y
connected.
connected o
n
t
e.
median lines
w
een the end
r
offset is the
s
hafts. A typ
i
m
edian lines
a
ble parallel o
g and is indi
c
manufacture
w
flanges use
c
heck both p
a
P
E
PUMPS
(
V
T
m
otor assemb
l
gnment for
e
sure that th
e
h
at the drive
r
u
mp. Driver
n
so the
nment
p
ump rotatio
n
The power
n
ly after the
of shaft
s of the two
displaceme
n
i
cal example
run parallel.
ffset depend
s
c
ated in the
r of coupling.
a dial indicat
a
rallel and
P
arallel offse
t
Angular offset
T
PS
)
CENTR
I
l
y
e
r
n
t
is
s
or
a) P
u
ca
th
e
m
e
us
ca
b) W
h
n
e
ru
n
magn
e
may o
v
If the
p
be rec
align
m
servic
e
P
4.7
conne
c
enteri
n
install
a
from t
h
4.7.1
In ord
e
noise i
pipe
w
pump
s
Typic
a
m/s (6
disch
a
Take i
n
higher
IFUGAL PU
M
Pa
u
mps with thi
c
a
n be aligned
e
outside dia
m
e
asuring the
g
s
ing feeler ga
u
a
lipers.
hen the elect
e
cessary to e
n
n
on its mag
n
Refer to the
m
If th
e
e
tic center th
e
v
erload the p
p
ump is hand
hecked in w
a
m
ent of the un
e
hours.
P
iping
Pro
t
c
tions to pre
v
n
g the pump
d
a
tion. Ensur
e
h
e pump bef
o
Pipe work
e
r to minimiz
e
i
n the pipe w
o
w
ork that is o
n
suction and
d
a
lly, main pip
e
ft/sec) on th
e
a
rge.
n
to account t
h
than the req
u
M
PS ENGLI
S
rallel
A
ngular
c
k flanged n
o
by using a st
m
eters of the
g
ap between
u
ges, measu
r
ric motor has
n
sure that th
e
n
etic centerli
n
m
otor User I
n
e
motor does
e
resultant a
d
ump thrust b
e
ling hot liqui
d
a
rm condition
it shall be ch
e
t
ective cover
s
v
ent foreign p
d
uring transp
e
that these c
o
re connectin
g
velocities
e
friction loss
e
o
rk it is good
n
e or two size
d
ischarge.
e
velocities s
h
e
suction and
he available
N
u
ired NPSH
o
S
H 7156922
4
flows
e
o
n-spacer co
u
raight-edge
a
coupling hu
b
the machine
d
r
ing wedge o
r
s
sleeve beari
e
motor is ali
g
n
e.
n
structions fo
not run in its
d
ditional axial
e
aring.
d
, the alignm
e
of the unit.
T
e
cked again
a
s
are fitted to
articles or ob
j
ortation and
overs are re
m
g
pipes.
e
s and hydra
u
practice to c
h
s larger than
h
ould not exc
3 m/s (9 ft/s
e
N
PSH that m
o
f the pump.
4
– 02-15
e
rve.com
u
plings
a
cross
b
s and
d
faces
r
ngs, it is
g
ned to
r details.
s
force
e
nt must
T
he
a
fter 200
the pipe
b
jects
m
oved
u
lic
h
oose
the
eed 2
e
c) on
ust be

Related product manuals