EasyManua.ls Logo

Focal 907 - 907-DIAG-E (Diagnostics Card, Ethernet); Figure 6-11: 907-DIAG-E Diagnostics Card

Focal 907
71 pages
Print Icon
To Next Page IconTo Next Page
To Next Page IconTo Next Page
To Previous Page IconTo Previous Page
To Previous Page IconTo Previous Page
Loading...
907-0601-00 Rev. C Model 907 Video/Data Multiplexer – User’s Guide
Focal Technologies Corp. Page 6-11
6.10 907-DIAG-E (Diagnostics Card, Ethernet)
Card P/N
907-0238-00
Config. Dwg.
907-2039-00
Diagnostics:
907-DIAG-E Compatible
The 907-DIAG-E diagnostics card provides real-time diagnostic information from 907 motherboards and
media converters that are 907-DIAG-E compatible. SFP diagnostics from the remote and console
motherboards and media converters, such as Rx and Tx power, Tx bias current, temperature, voltage, vendor
information, and wavelength, are retrieved via the 907-DIAG-E card. The diagnostic card also reads
card-specific status information, stack backplane-voltages, and additional diagnostic data collected by the
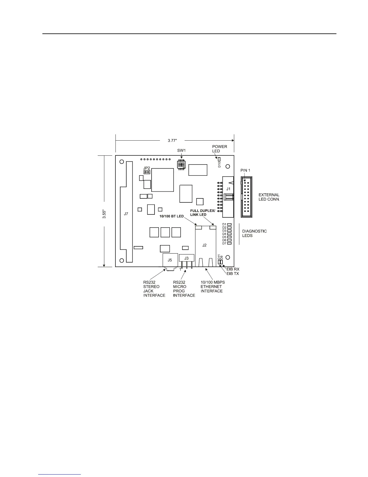
motherboard or media converter from other cards through the backplane. Figure 6-11 shows the top view of
the 907 diagnostic card.
Figure 6-11: 907-DIAG-E Diagnostics Card
To retrieve diagnostic information, a single diagnostics card is mounted on the console stack. The diagnostic
card provides a convenient Ethernet interface to read diagnostic data from the system. Diagnostic information
is retrieved using a proprietary command-set through either an Ethernet port (J2) or an RS-232 interface (J5)
on the 907-DIAG-E.
Remote and console diagnostic read-requests received on these interfaces trigger the diagnostic card to fetch
the appropriate data from the console stack memory registers using an I2C interface over the PC/104
backplane (J7). Diagnostic information from cards in the remote stack are repeatedly transmitted from the
remote stack to dedicated registers in the console stack and are read by the diagnostics card in the same
manner as console diagnostic data.
In addition to providing a full protocol description for user-implementation of a software interface to the
907-DIAG-E system, Focal Technologies has created a .NET library and a sample Graphical User Interface
for displaying system diagnostics on a Windows-based PC. Refer to the Diagnostic Protocol Manual,
700-0739-00, and the Diagnostic Software Manual, 907-0604-00, for more details on the card capabilities,
interfaces, protocol description, and available software development tools.

Table of Contents