EasyManua.ls Logo

Follett REF20-PH - Refrigeration System Diagram

Follett REF20-PH
36 pages
Print Icon
To Next Page IconTo Next Page
To Next Page IconTo Next Page
To Previous Page IconTo Previous Page
To Previous Page IconTo Previous Page
Loading...
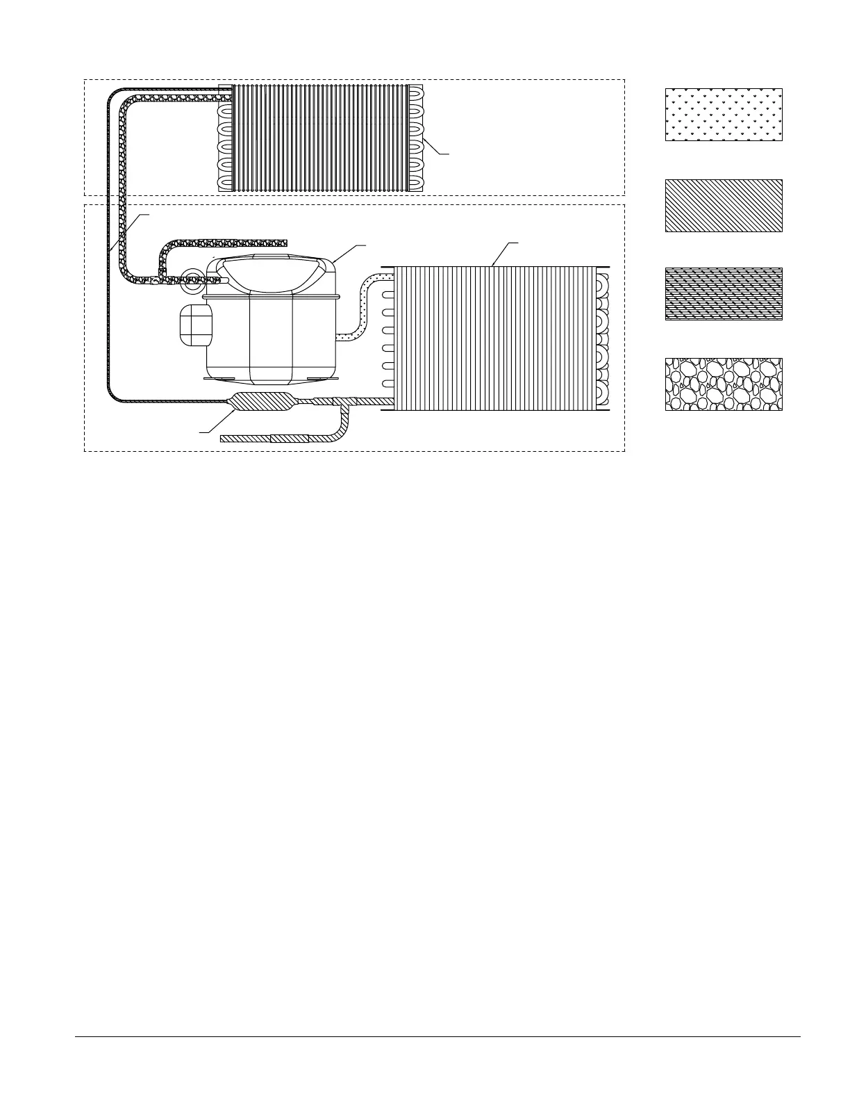
01134592 – REF20/25 LB, PH, BB 23
Refrigeration System
HIGH PRESSURE VA PO
R
HIGH PRESSURE LIQUID
LOW PRESSURE LIQUID
LOW PRESSURE VAPOR
FILTER-DRIER
COMPRESSOR
EVAPORATOR
CAPILLARY TUBE
CONDENSER

Related product manuals