EasyManua.ls Logo

Frymaster BIH52 Series - Page 56

Frymaster BIH52 Series
115 pages
Print Icon
To Next Page IconTo Next Page
To Next Page IconTo Next Page
To Previous Page IconTo Previous Page
To Previous Page IconTo Previous Page
Loading...
3-39
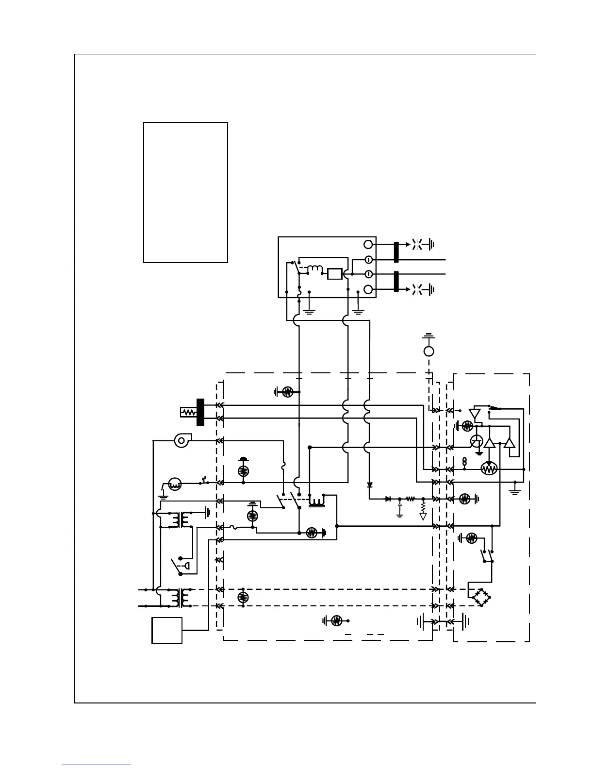
H52 SERIES— FULL-VAT WITH ONE DUAL-SPARK IGNITION MODULE
(ONE DUAL FUNCTION HEAT/BLOWER RELAY (K3))
DRAIN SAFETY SWITCH
ONLY ON BIH52 MODELS
AIR SWITCH
ONLY ON CE AND SOME
EXPORT UNITS
LINE VOLTAGE
K3
HEAT &
BLOWER
RELAY
AIR
OPTIONAL
AIR
SWITCH
BLOWER
H
I
LIMI
T
12V
24V
TEMP
PROBE
24V
LED 3
LED 5
R-GV
R HEAT
LED 4
R
PWR
V1D
ALARM
LED 6
12V
L HEAT
LED 2
L
PWR
ALARM
V2S
POWER
ON/OFF
TROUBLE
HEAT
T
J3
621291185431
J2
11
11
4
4
13
13
14
14
10
10
5
5
3
3
1
1
2
2
G
V
DUAL-SPARK
IGNITION
MODULE
ALARM
TD
VALV
E
GND
BNR
GND
RIGHT
IGNITOR
S
D
M
DRAIN SAFETY
SWITCH
1/50
A
47K
1K
F1
25V+
HV
HV
LEFT
IGNITOR
NOTE: SOME UNITS
MANUFACTURED AFTER
AUGUST 2000 ARE
EQUIPPED WITH ONE
DUAL-SPARK IGNITION
MODULE. OTHERS MAY
BE EQUIPPED WITH TWO
SINGLE-SPARK IGNITION
MODULES.
HOOD
RELAY
SENSING
WIRE
FUSE

Table of Contents

Related product manuals