EasyManua.ls Logo

GE Multilin F35 - Page 49

GE Multilin F35
486 pages
Print Icon
To Next Page IconTo Next Page
To Next Page IconTo Next Page
To Previous Page IconTo Previous Page
To Previous Page IconTo Previous Page
Loading...
GE Multilin F35 Multiple Feeder Protection System 3-3
3 HARDWARE 3.1 DESCRIPTION
3
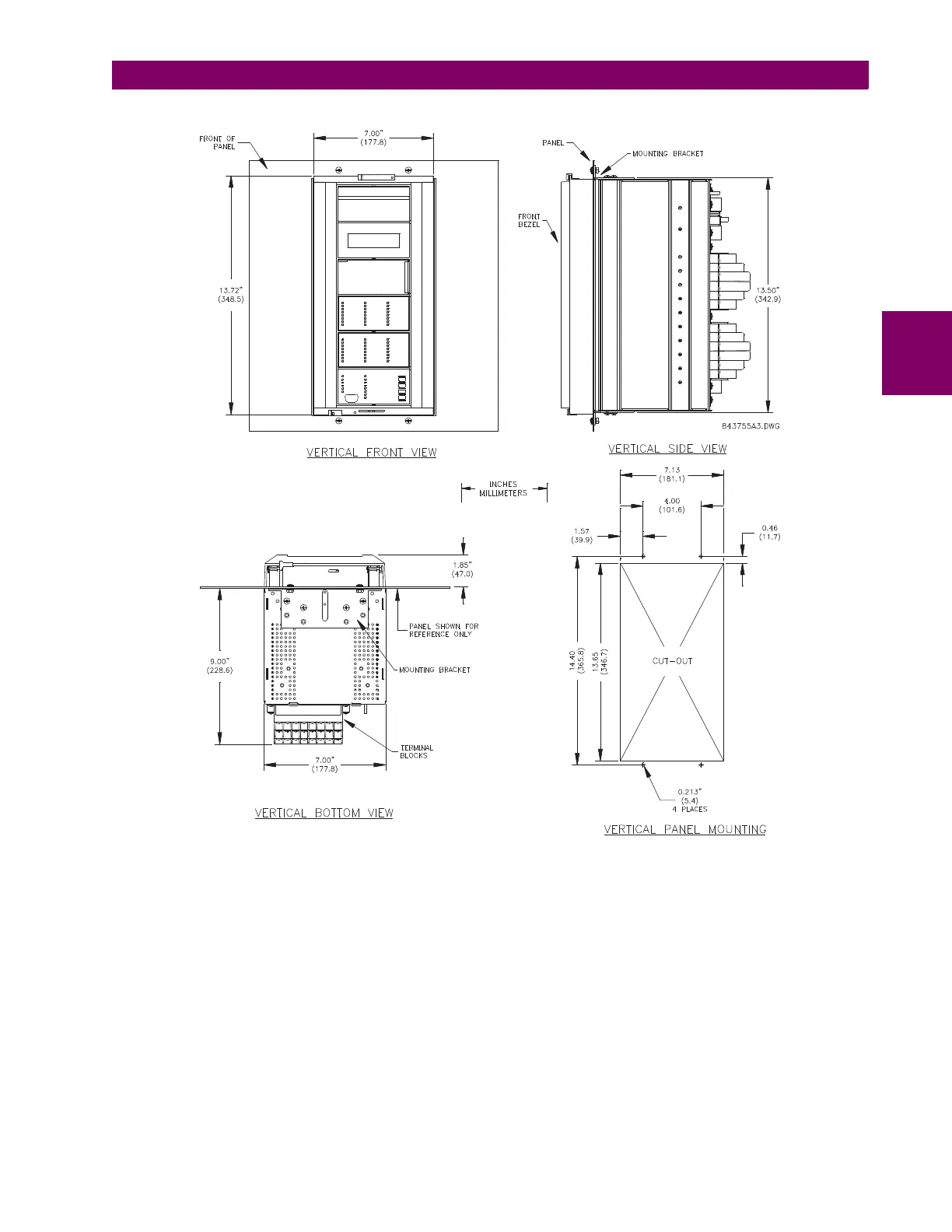
Figure 3–4: F35 VERTICAL MOUNTING AND DIMENSIONS
e
UR SERIESUR SERIES

Table of Contents

Related product manuals