EasyManua.ls Logo

Gemsy 500 - Page 97

Gemsy 500
Print Icon
To Next Page IconTo Next Page
To Next Page IconTo Next Page
To Previous Page IconTo Previous Page
To Previous Page IconTo Previous Page
Loading...
10 16
Parameter
High byte
Parameter
Low byte
Default Rang Comment
4 0
031
Torque boost up at low speed :
0no action
1~3131 levels Torque boost up
5 1
01
Stop pin mode
0Constant speed tackle mode (in the belt
transmission, Parking is not precision)
1back pull modePMX
6 150 0 ~800 Command button to fill half-needle time
7 180 0 ~800 Command button to fill a needle time
1 0
012
Translating Parameter
0no action
1Download parameters( the panel will
parameter from panel to controller )
2Upload parameters ( the panel will parameter
from controller to panel)
2 0 1, 2, XXXX
Restore storage parameter(Only restore
parameters to operators, and vendors and
maintenance )
Belt flat 1000/ Direct drive flat 2000
3 0 1, 2
Backup current parameter as user parameter for
restore (restore)
Operation
6
Note: Above such “6x "parameter to operate is not saved.
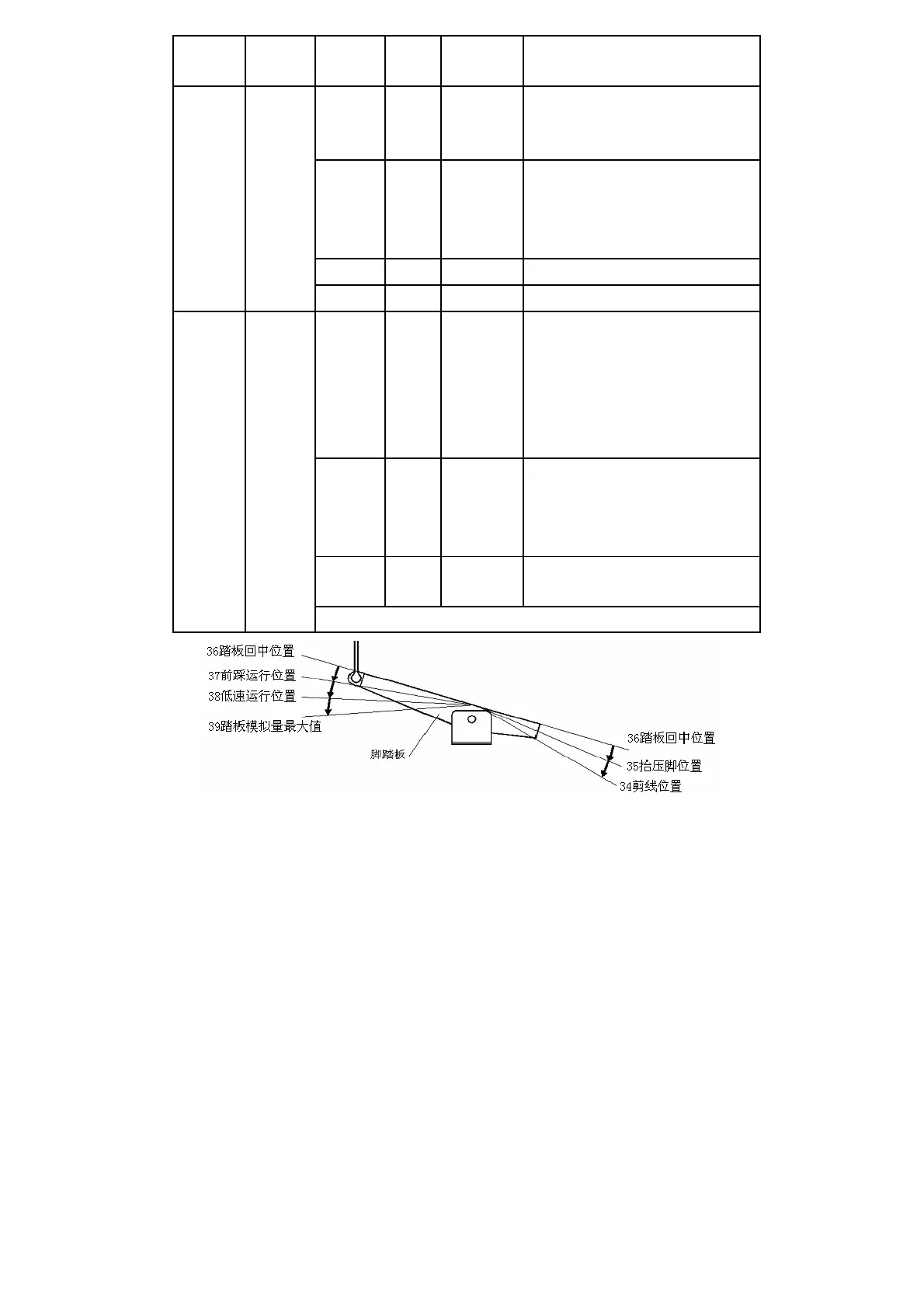
Fig2-1 Pedal action parameter the position of the diagram

Related product manuals