EasyManua.ls Logo

Gill Instruments Windobserver 65 - Page 24

Gill Instruments Windobserver 65
65 pages
Print Icon
To Next Page IconTo Next Page
To Next Page IconTo Next Page
To Previous Page IconTo Previous Page
To Previous Page IconTo Previous Page
Loading...
Gill Instruments Ltd
_____________________________________________________________________________________________________________
________________________________________________________________________________________________
WindObserver 65 Page 24 Issue 4
Doc. No. 1390-PS-0039 June 2016
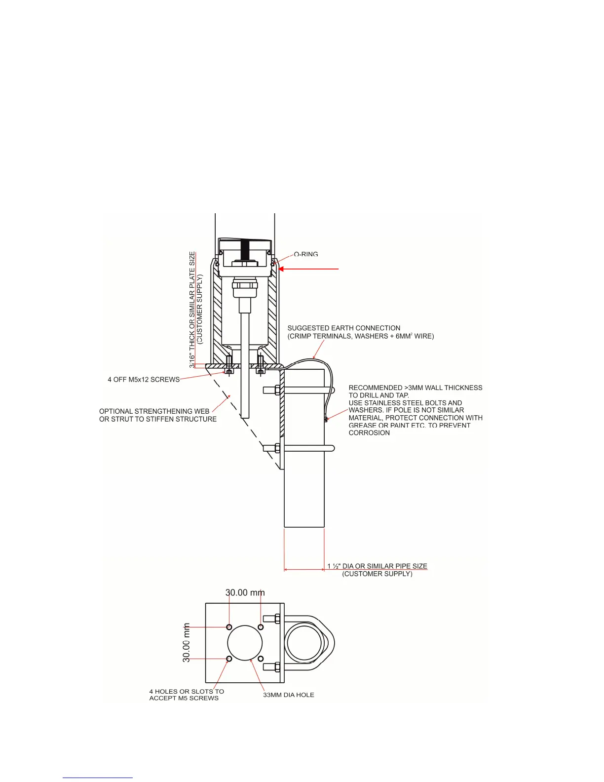
Figure 1. Suggested mounting bracket and Earthing (grounding) arrangements
The example shows a long mount fitted to a cable gland unit, a similar Earthing/ mounting
arrangement can be used with short mounts and connector based units.
A mounting kit (1390-10-164) is supplied with the WindObserver 65 to allow assembly of
the mount to the base of the WindObserver.
Included in the supplied mounting kit is an O Ring Seal which must be fitted inside
of the Base Mount.
Now fit the Base Mount to the WindObserver base using supplied 3 off M5x12 screws,
first fit a wavy washer to them, then a flat washer, then the seal washer before screwing to
the WindObserver Base mount.
Fit the Base Mount to the WindObserver
base using supplied 3 off M5x12 screws,
first fit a wavy washer to them, then a flat
washer, then the seal washer before
screwing to the WindObserver Base
mount

Table of Contents

Related product manuals