EasyManua.ls Logo

Graco G-Max 7900 - Wiring Diagram

Graco G-Max 7900
36 pages
Print Icon
To Next Page IconTo Next Page
To Next Page IconTo Next Page
To Previous Page IconTo Previous Page
To Previous Page IconTo Previous Page
Loading...
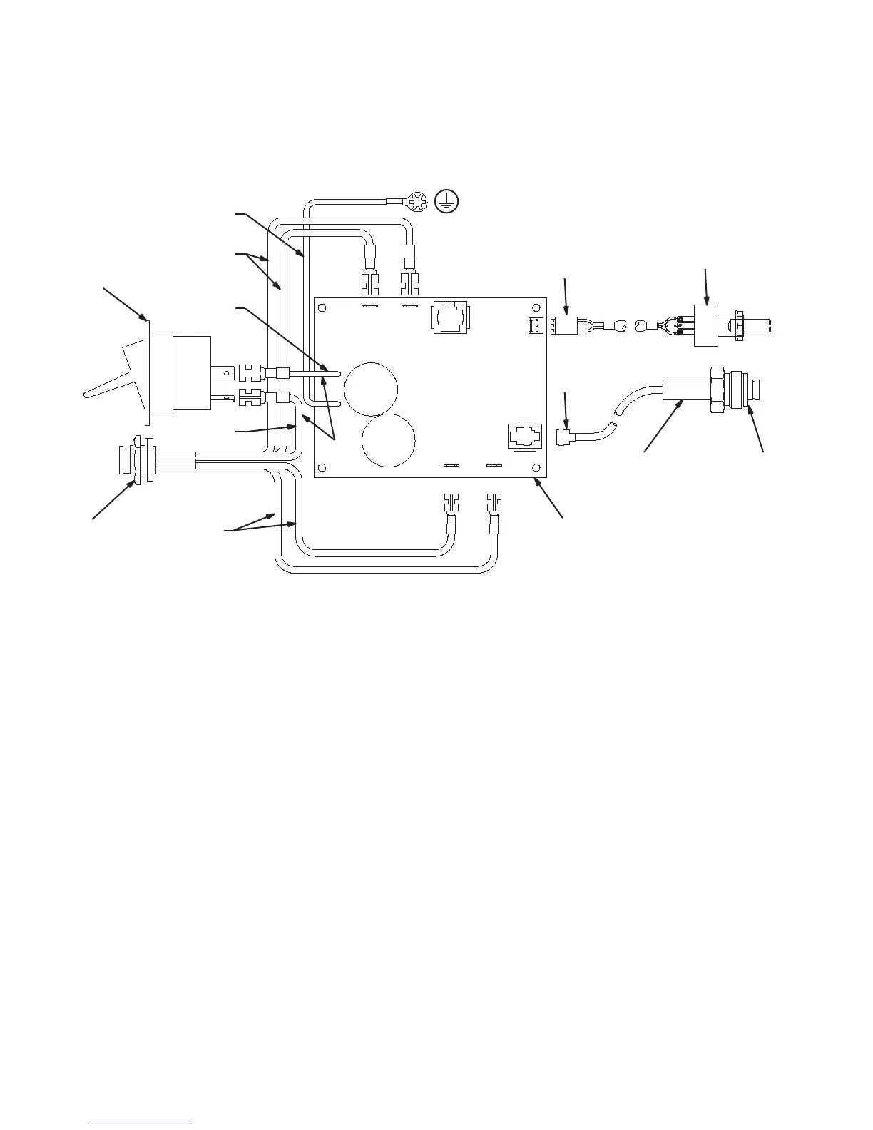
Wiring Diagram
34 308870G
Wiring Diagram
Green
Violet
Pressure
transducer
Potentiometer
Red (+)
Black
Red
309
(Ref)
304
(Ref)
318z
(Ref)
310
(Ref)
302
(Ref)
D
E
A
318aa
(Ref)

Related product manuals