EasyManua.ls Logo

Hamworthy F85V - Figure 3.1.2 Table Dimensions and Clearances

Hamworthy F85V
68 pages
Print Icon
To Next Page IconTo Next Page
To Next Page IconTo Next Page
To Previous Page IconTo Previous Page
To Previous Page IconTo Previous Page
Loading...
HAMWORTHY HEATING LTD
5
FLEET V series
500001213/G
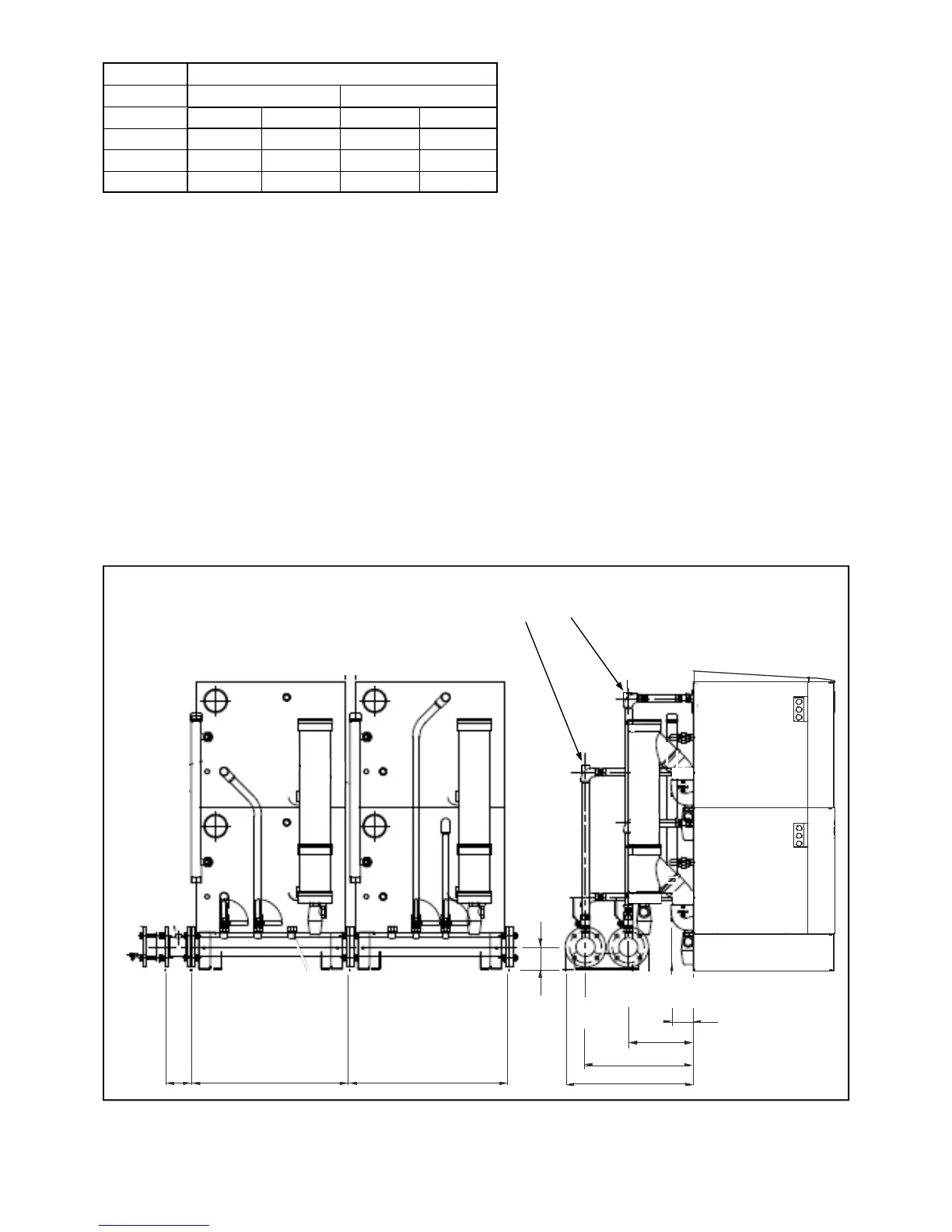
Figure 3.2.1 – F40/F100V - water pipe work kit (2 high boiler installation shown)
504
350
100
110
GAS
R 1
1/2
FLOW
DN80
RETURN
DN80
600
750750
120
Figure 3.1.2 - Table Dimensions and clearances
BOILER MODEL
Dimension
F40V –F100V
A
580
580 680 680
B
320 320 320 350
C*
150 150 150 200
F125V—F150V
Two high
Three high
Two high
Three high
C - a 150Ø flue manifold is provided to connect the modules
C* - for models F125V-375 & F150-450, the flue termination is 200Ø
1/2” BSP Socket
for pressure gauge
386
540
636

Table of Contents

Related product manuals